Алиот – ИНДИВИДУАЛЬНЫЙ ПРОЕКТ ДОМА ИЗ КЛЕЕНОГО БРУСА

О проекте

Основные параметры проекта

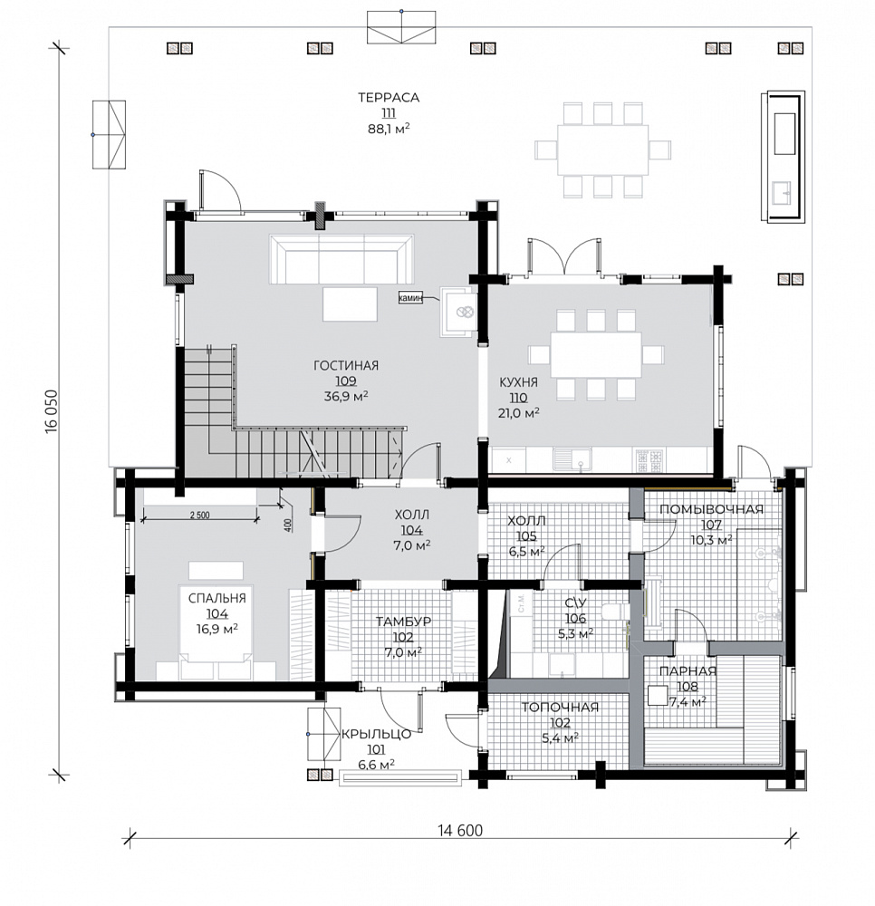
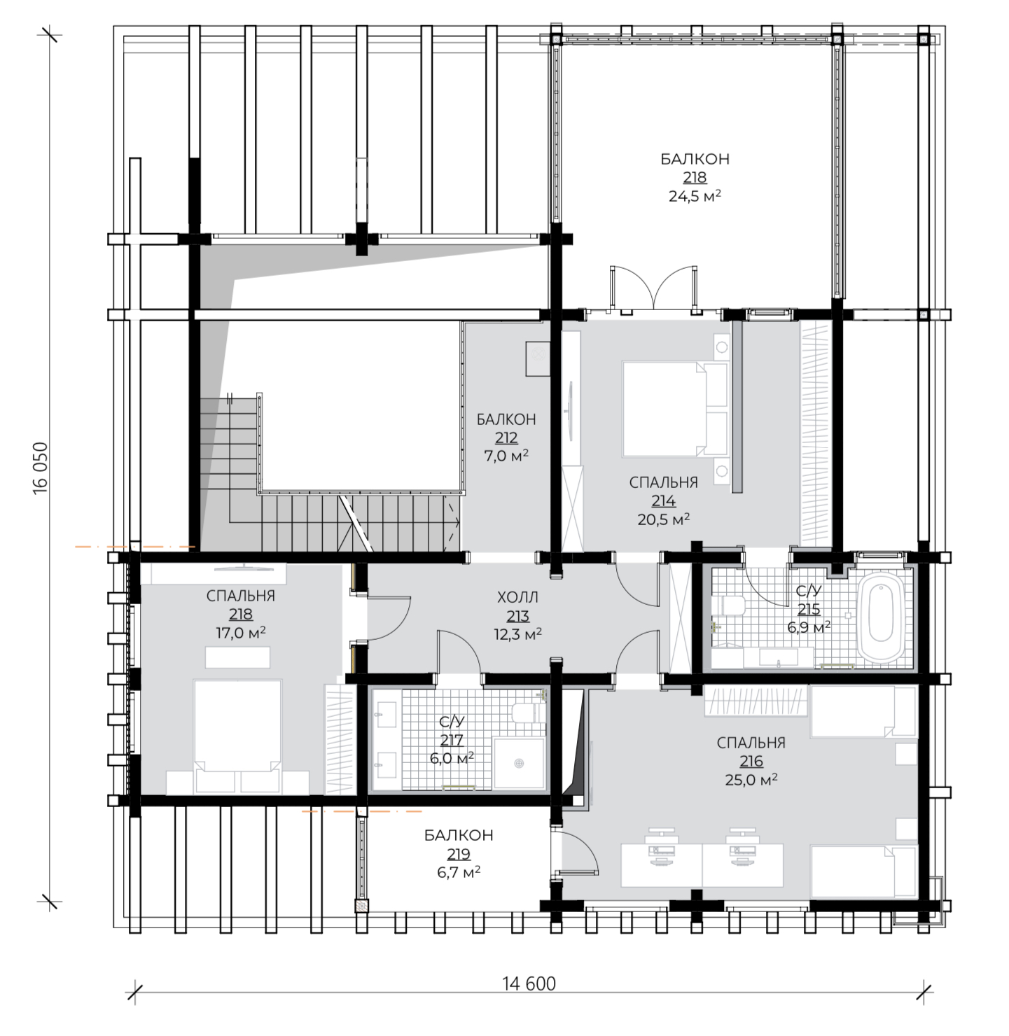
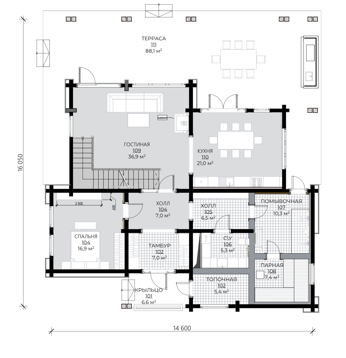
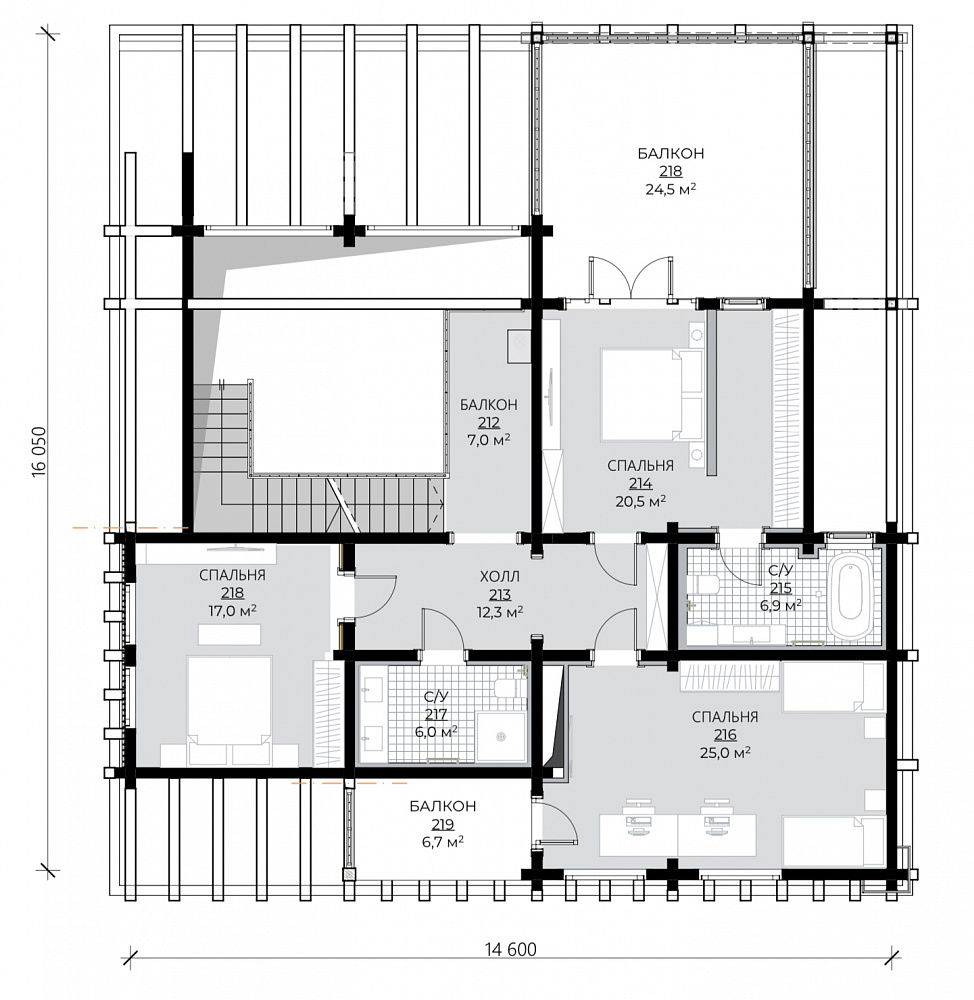
Фактурный двухэтажный дом, в котором соединяются проверенные планировочные и смелые современные архитектурные решения, спроектирован для семьи из 4-6 человек. Пространства гостиной со вторым светом и кухни имеют сплошное остекление с выходом на террасу. Также отдельный выход на террасу предусмотрен из блока сауны с душевой и предбанником. В доме оборудовано 4 спальни, одна из которых находится на первом этаже и может использоваться в качестве гостевой комнаты. Мастер-спальня на втором этаже имеет большой балкон с видом на участок и отдельную ванную комнату с входом через гардеробную.

общая площадь
343 м²
площадь 1 этажа
217 м²
площадь 2 этажа
126 м²
этажность
2

Планы дома

Индивидуальный проект

1 этаж
2 этаж
Не можете найти подходящий проект?

Обсудим ваш будущий дом?

С чего начинается сотрудничество

Выберите идеальный сценарий начала сотрудничества со Starkwood

8 495 120-28-88
Москва
8 812 270-75-70
Санкт-Петербург
Свяжитесь с нашими
специалистами
Оставьте свои контактные данные, чтобы представители компании Starkwood связались с вами в ближайшее время и проконсультировали по всем вопросам.
Как удобнее с вами связаться
  • Написать в Viber
  • Написать в WhatsApp
  • Написать в Telegram
  • Отправить Sms
8 495 120-28-88
Москва
8 812 270-75-70
Санкт-Петербург
Свяжитесь с нашими
специалистами
Оставьте свои контактные данные, чтобы представители компании Starkwood связались с вами в ближайшее время и проконсультировали по всем вопросам.
Как удобнее с вами связаться
  • Написать в Viber
  • Написать в WhatsApp
  • Написать в Telegram
  • Отправить Sms
8 495 120-28-88
Москва
8 812 270-75-70
Санкт-Петербург
Свяжитесь с нашими
специалистами
Оставьте свои контактные данные, чтобы представители компании Starkwood связались с вами в ближайшее время и проконсультировали по всем вопросам.