Алтаит – ИНДИВИДУАЛЬНЫЙ ПРОЕКТ ДОМА ИЗ КЛЕЕНОГО БРУСА

О проекте

История создания

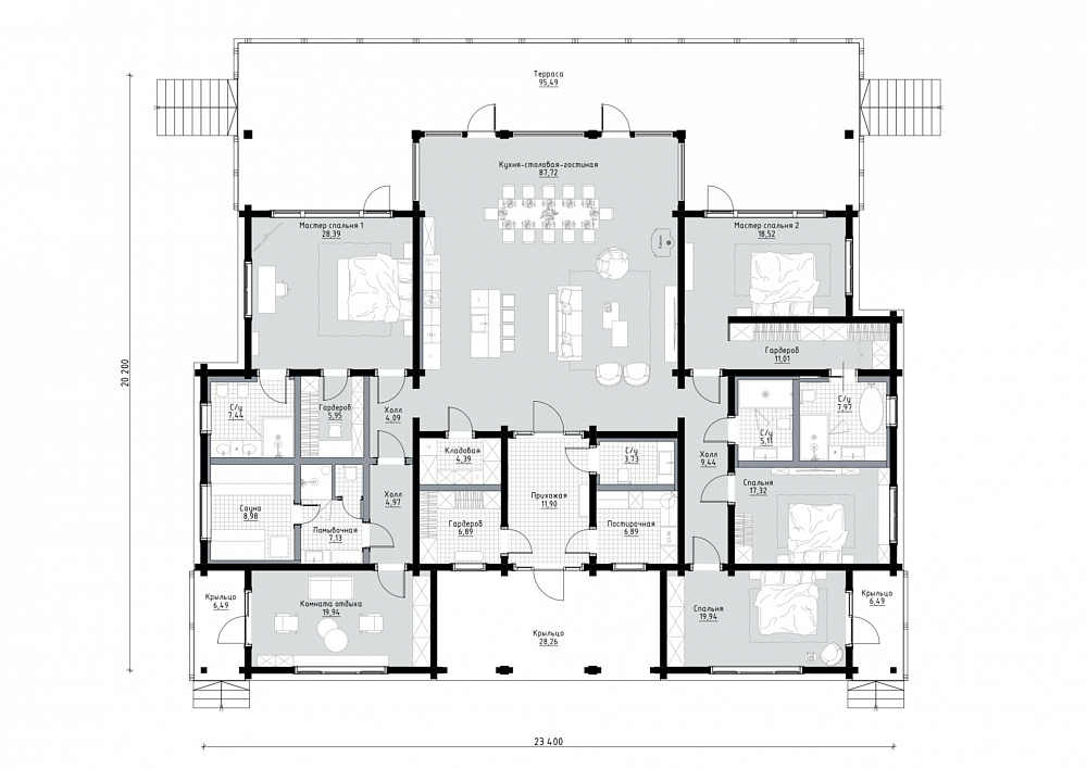
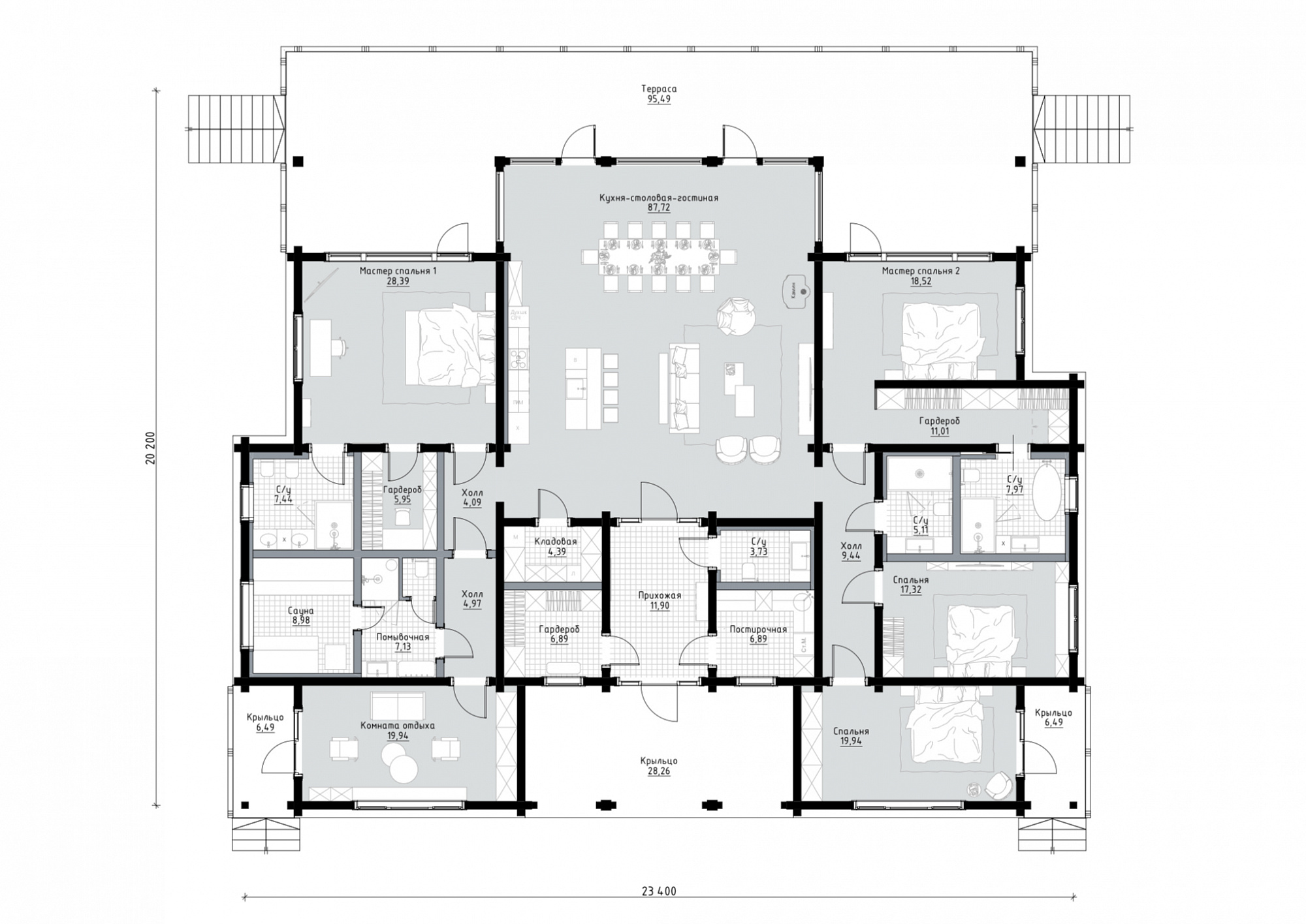
Одноэтажный дом разработан для семьи из 4 человек. Проект создан в стиле шале, особенности которого подчеркиваются видовыми стропилами и пологой двускатной крышей. Симметричные фасады и вход по центральной оси поддерживают классическую архитектуру, а панорамное остекление приносит в облик дома современные ноты. Парадное крыльцо ведет в просторную прихожую, к которой примыкают большая гардеробная, кладовая и прачечная. Из прихожей можно пройти в гостиную-столовую с высокими потолками, оформленными по скатам кровли. Такой прием приносит в интерьер больше света и воздуха. Из гостиной есть выход на большую открытую террасу. В доме оборудованы две мастер-спальни с отдельными ванными, гардеробными и собственными выходами на террасу. Кроме того, есть еще две дополнительных спальни с общей ванной. В доме предусмотрена зона СПА с парной, душевой и комфортной комнатой отдыха с отдельным выходом. Традиционный стиль в современном прочтении.

общая площадь
434 м²
площадь 1 этажа
434 м²
этажность
1
Международный форум деревянного строительства. VI Российский смотр-конкурс с международным участием «Дерево в архитектуре».
ДИПЛОМ СОЮЗА МОСКОВСКИХ АРХИТЕКТОРОВ

Планы дома

Индивидуальный проект

1 этаж
Не можете найти подходящий проект?

Обсудим ваш будущий дом?

С чего начинается сотрудничество

Выберите идеальный сценарий начала сотрудничества со Starkwood

8 495 120-28-88
Москва
8 812 270-75-70
Санкт-Петербург
Свяжитесь с нашими
специалистами
Оставьте свои контактные данные, чтобы представители компании Starkwood связались с вами в ближайшее время и проконсультировали по всем вопросам.
Как удобнее с вами связаться
  • Написать в Viber
  • Написать в WhatsApp
  • Написать в Telegram
  • Отправить Sms
8 495 120-28-88
Москва
8 812 270-75-70
Санкт-Петербург
Свяжитесь с нашими
специалистами
Оставьте свои контактные данные, чтобы представители компании Starkwood связались с вами в ближайшее время и проконсультировали по всем вопросам.
Как удобнее с вами связаться
  • Написать в Viber
  • Написать в WhatsApp
  • Написать в Telegram
  • Отправить Sms
8 495 120-28-88
Москва
8 812 270-75-70
Санкт-Петербург
Свяжитесь с нашими
специалистами
Оставьте свои контактные данные, чтобы представители компании Starkwood связались с вами в ближайшее время и проконсультировали по всем вопросам.