Антарес – ИНДИВИДУАЛЬНЫЙ ПРОЕКТ ДОМА ИЗ КЛЕЕНОГО БРУСА

О проекте

История создания

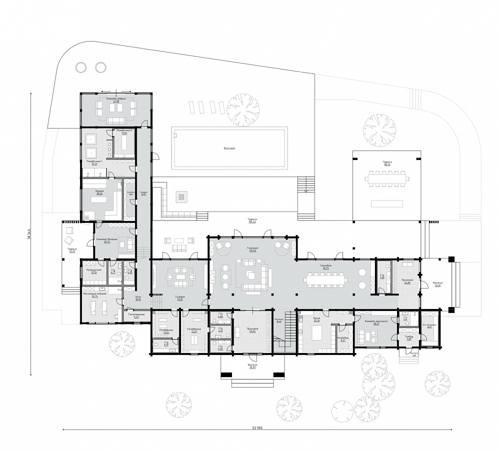
СПА-комплекс предназначен для комфортного отдыха и проживания гостей. В качестве цветового решения фасадов выбрано популярное сочетание теплого бежевого и насыщенного серого оттенков. Карнизы кровли оформлены каменными панелями и декоративной подсветкой. В сочетании с лаконичной архитектурой данные элементы придают облику комплекса современный вид. Большое количество террас позволяет с комфортом насладиться отдыхом на свежем воздухе. Комплекс гармонично сочетается с окружающим ландшафтом — вековыми соснами, бережно сохраненными заказчиком и специалистами Starkwood. Панорамное остекление позволяет любоваться лесным пейзажем и делает внутреннее пространство максимально открытым. Внутренняя планировка решена функционально и комфортно: для гостей есть два входа – со стороны подъездной аллеи и от главного дома. На первом этаже расположены зона персонала с отдельным входом, столовая, гостиная со вторым светом и камином и СПА-зона. Она включает в себя две раздевалки, массажный кабинет, парную, две душевых и комнату отдыха с выходом на отдельную террасу. На втором этаже находятся апартаменты для гостей. Спа-комплекс идеально подходит для расслабления и отдыха в целительной атмосфере соснового бора.

общая площадь
1 383 м²
площадь 1 этажа
1 098 м²
площадь 2 этажа
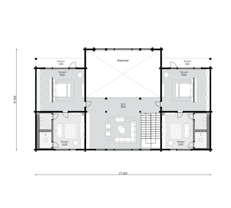
285 м²
этажность
2
Открытый архитектурный конкурс "Красивые деревянные дома 2024"
2-е место в номинации "Дизайн-проект"

Планы дома

Индивидуальный проект

1 этаж
2 этаж
Не можете найти подходящий проект?

Обсудим ваш будущий дом?

С чего начинается сотрудничество

Выберите идеальный сценарий начала сотрудничества со Starkwood

8 495 120-28-88
Москва
8 812 270-75-70
Санкт-Петербург
Свяжитесь с нашими
специалистами
Оставьте свои контактные данные, чтобы представители компании Starkwood связались с вами в ближайшее время и проконсультировали по всем вопросам.
Как удобнее с вами связаться
  • Написать в Viber
  • Написать в WhatsApp
  • Написать в Telegram
  • Отправить Sms
8 495 120-28-88
Москва
8 812 270-75-70
Санкт-Петербург
Свяжитесь с нашими
специалистами
Оставьте свои контактные данные, чтобы представители компании Starkwood связались с вами в ближайшее время и проконсультировали по всем вопросам.
Как удобнее с вами связаться
  • Написать в Viber
  • Написать в WhatsApp
  • Написать в Telegram
  • Отправить Sms
8 495 120-28-88
Москва
8 812 270-75-70
Санкт-Петербург
Свяжитесь с нашими
специалистами
Оставьте свои контактные данные, чтобы представители компании Starkwood связались с вами в ближайшее время и проконсультировали по всем вопросам.