Аргос – ИНДИВИДУАЛЬНЫЙ ПРОЕКТ ДОМА ИЗ КЛЕЕНОГО БРУСА

Основные характеристики

История создания

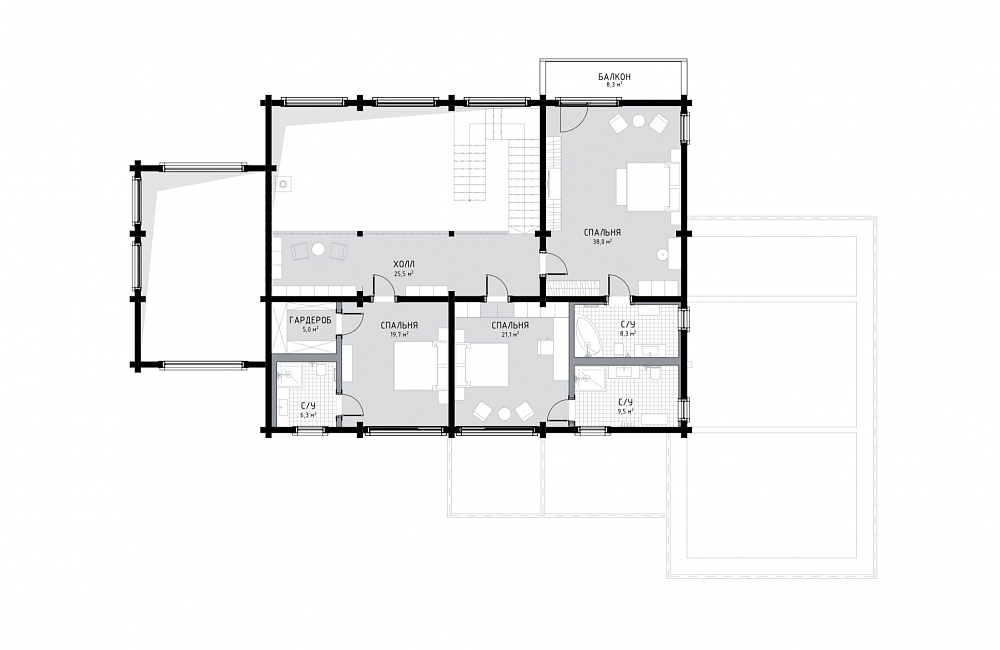
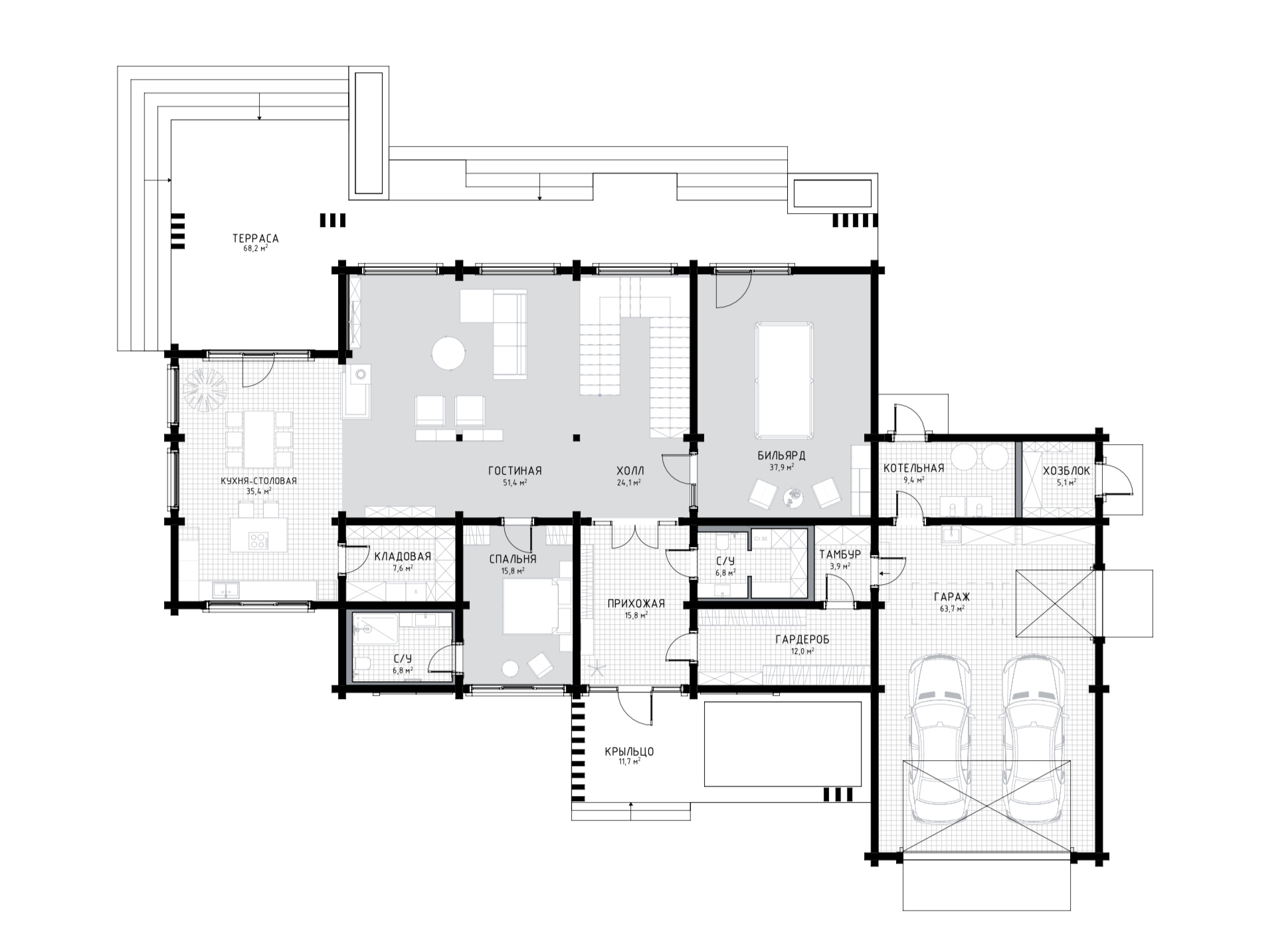
Двухэтажный дом оформлен в стиле современного шале и разработан для семьи из 5 человек. Сочетание декоративных каменных панелей и темно-серого дерева в отделке фасадов придает дому брутальность. Завершают образ оригинальные видовые стропила, декоративные перголы и 3D-наличники на окнах. Помимо парадного входа в доме есть и дополнительный — через гараж. Планировка внутреннего пространства сделана с учетом эргономики. К расположенной на первом этаже кухне-столовой примыкает кладовая. Кухня визуально объединена с просторной гостиной, оборудованной вторым светом. Рядом с ней размещена бильярдная комната, имеющая выход на террасу. Кроме того, на первом этаже находятся прихожая, гостевая со своей ванной комнатой и общая ванная. На втором этаже расположены мастер-спальня и две детские комнаты. Каждая – с отдельной ванной.

общая площадь
517 м²
площадь 1 этажа
375 м²
площадь 2 этажа
142 м²
этажность
2

Планы дома

Индивидуальный проект

1 этаж
2 этаж
Не можете найти подходящий проект?

Обсудим ваш будущий дом?

С чего начинается сотрудничество

Выберите идеальный сценарий начала сотрудничества со Starkwood

8 495 120-28-88
Москва
8 812 270-75-70
Санкт-Петербург
Свяжитесь с нашими
специалистами
Оставьте свои контактные данные, чтобы представители компании Starkwood связались с вами в ближайшее время и проконсультировали по всем вопросам.
Как удобнее с вами связаться
  • Написать в Viber
  • Написать в WhatsApp
  • Написать в Telegram
  • Отправить Sms
8 495 120-28-88
Москва
8 812 270-75-70
Санкт-Петербург
Свяжитесь с нашими
специалистами
Оставьте свои контактные данные, чтобы представители компании Starkwood связались с вами в ближайшее время и проконсультировали по всем вопросам.
Как удобнее с вами связаться
  • Написать в Viber
  • Написать в WhatsApp
  • Написать в Telegram
  • Отправить Sms
8 495 120-28-88
Москва
8 812 270-75-70
Санкт-Петербург
Свяжитесь с нашими
специалистами
Оставьте свои контактные данные, чтобы представители компании Starkwood связались с вами в ближайшее время и проконсультировали по всем вопросам.