Асаль – ИНДИВИДУАЛЬНЫЙ ПРОЕКТ ДОМА ИЗ КЛЕЕНОГО БРУСА

О проекте

Основные параметры проекта

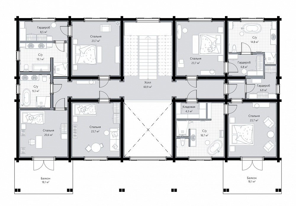
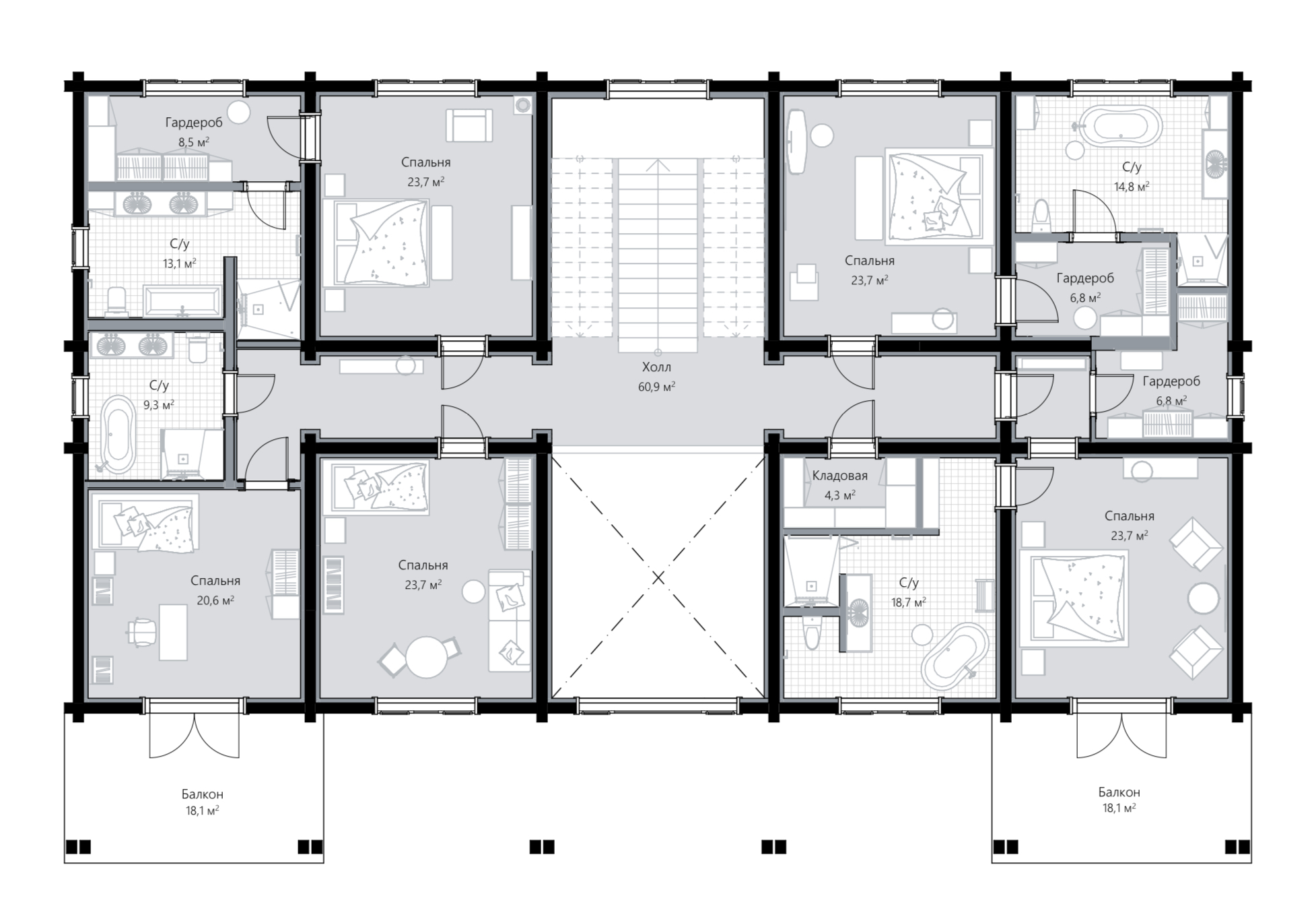
Усадьба в классическом стиле разработана для семьи из 7 человек. Темно-серый оттенок фасадов создает изысканный контраст с белым цветом колонн, наличников и декоративных элементов. Террасы и балконы огорожены изящной балюстрадой, плавно переходящей в тонкую декоративную резьбу. Архитектура усадьбы симметрична. Парадный вход расположен в центральной части и подчеркнут декоративным арочным элементом. Из центрального холла первого этажа наверх идет широкая парадная лестница. Слева от входа находится объединенное пространство гостиной и столовой и удобная кухня. Справа расположена приватная зона с тремя спальнями, двумя ванными комнатами и прачечной. На втором размещены три спальни с собственными ванными комнатами и две спальни с общей ванной. Из боковых комнат есть выходы на просторные балконы. На мансардном этаже расположен хозяйский кабинет. Усадьба стала настоящим родовым гнездом, в котором с комфортом могут жить несколько поколений одной семьи.

общая площадь
668 м²
площадь 1 этажа
368 м²
площадь 2 этажа
262 м²
площадь 3 этажа
38 м²
этажность
3

Планы дома

Индивидуальный проект

1 этаж
2 этаж
3 этаж
Не можете найти подходящий проект?

Обсудим ваш будущий дом?

С чего начинается сотрудничество

Выберите идеальный сценарий начала сотрудничества со Starkwood

8 495 120-28-88
Москва
8 812 270-75-70
Санкт-Петербург
Свяжитесь с нашими
специалистами
Оставьте свои контактные данные, чтобы представители компании Starkwood связались с вами в ближайшее время и проконсультировали по всем вопросам.
Как удобнее с вами связаться
  • Написать в Viber
  • Написать в WhatsApp
  • Написать в Telegram
  • Отправить Sms
8 495 120-28-88
Москва
8 812 270-75-70
Санкт-Петербург
Свяжитесь с нашими
специалистами
Оставьте свои контактные данные, чтобы представители компании Starkwood связались с вами в ближайшее время и проконсультировали по всем вопросам.
Как удобнее с вами связаться
  • Написать в Viber
  • Написать в WhatsApp
  • Написать в Telegram
  • Отправить Sms
8 495 120-28-88
Москва
8 812 270-75-70
Санкт-Петербург
Свяжитесь с нашими
специалистами
Оставьте свои контактные данные, чтобы представители компании Starkwood связались с вами в ближайшее время и проконсультировали по всем вопросам.