Астер – ИНДИВИДУАЛЬНЫЙ ПРОЕКТ ДОМА ИЗ КЛЕЕНОГО БРУСА

О проекте

История создания

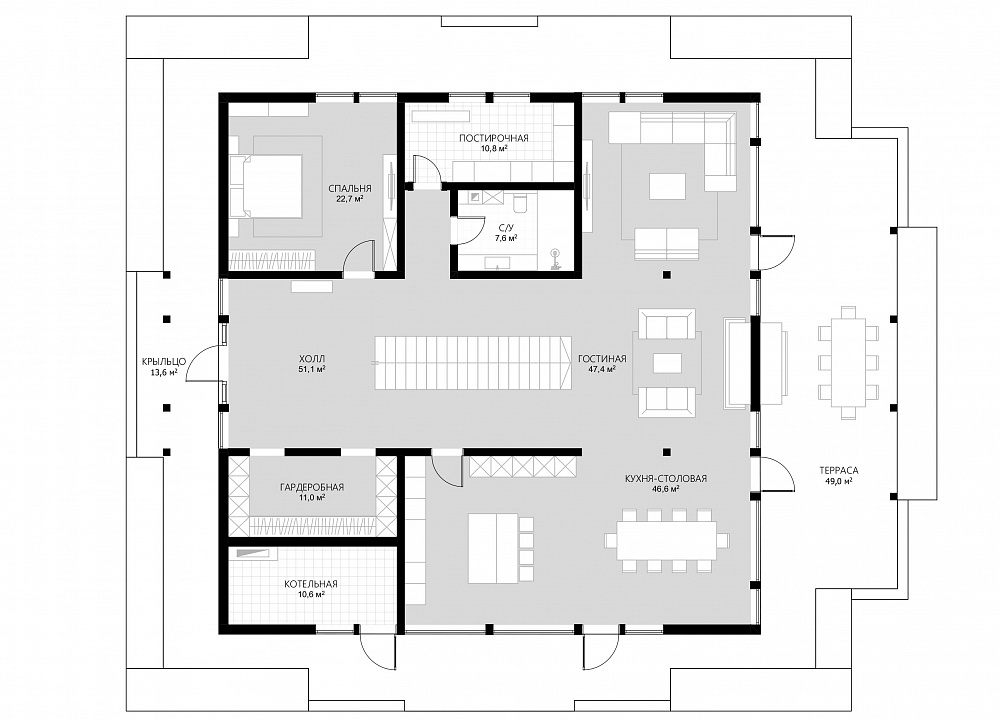
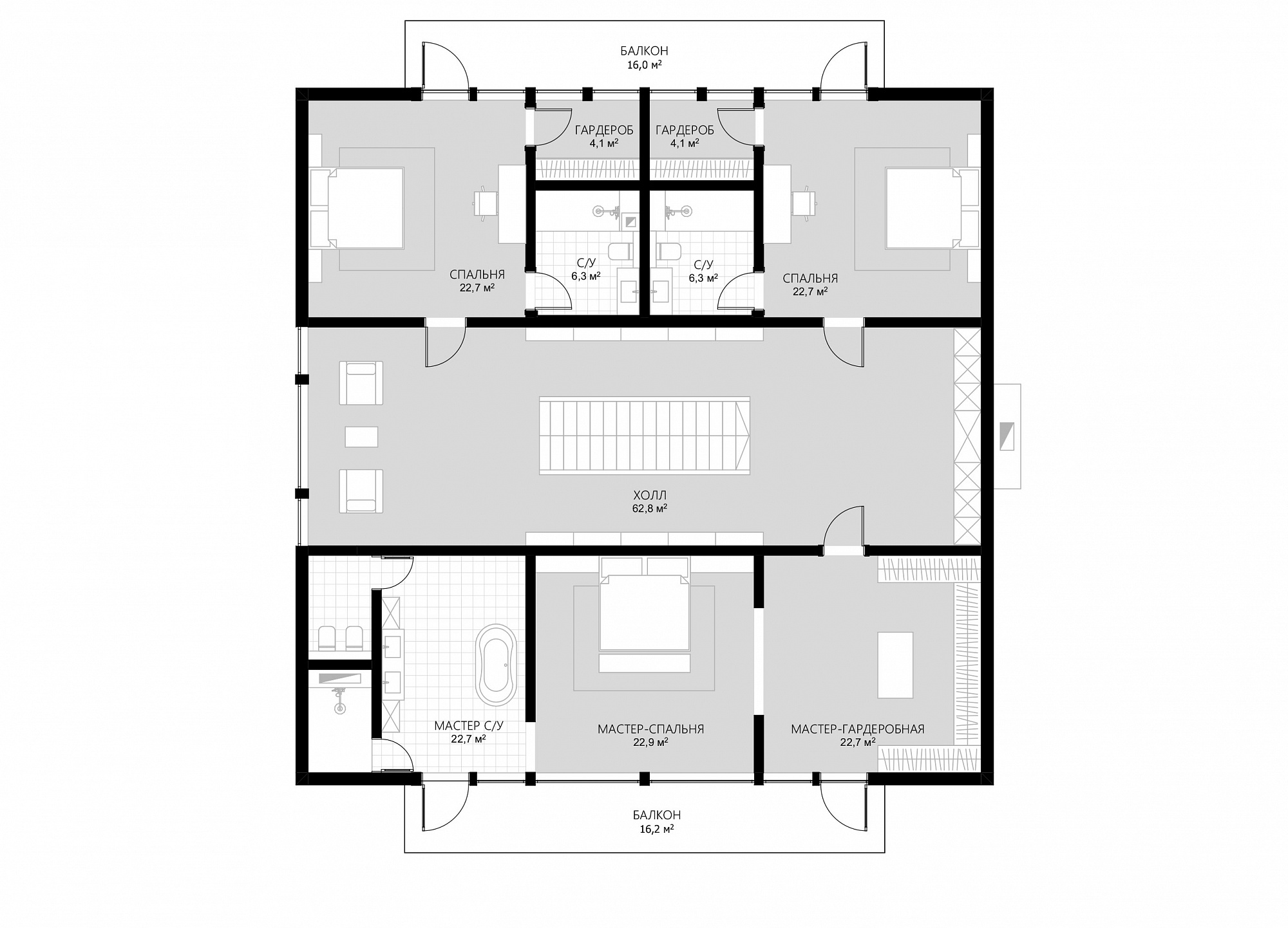
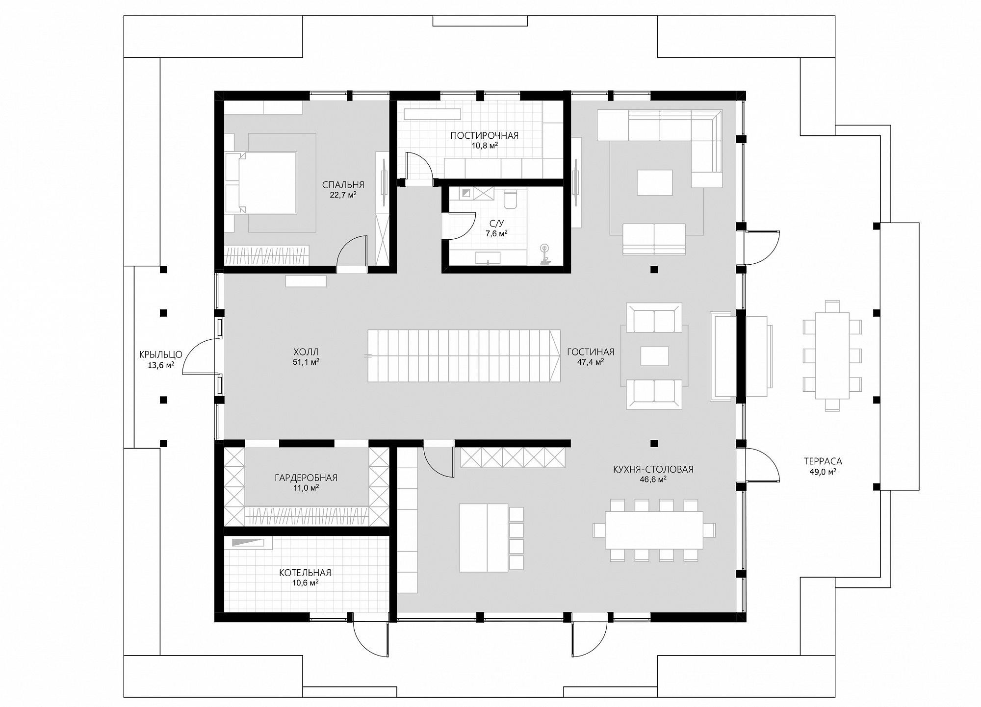
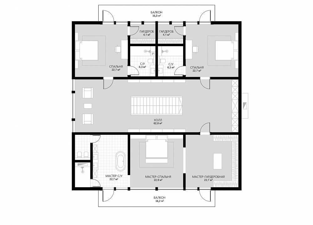
Двухэтажный дом возведен с использованием системы фахверк из клееного бруса собственного производства Starkwood. Особенности технологии строительства позволили сделать панорамные окна максимально возможной площади. Фасады отделаны светло-серыми деревянными панелями. Парадный вход акцентирован темной дверью с красным декоративным элементом. Просторная терраса, расположенная во внутреннем дворе, позволяет отдыхать на свежем воздухе в уединении и тишине. Планировка дома эргономична. На первом этаже расположена прихожая с гардеробом, гостевая спальня с ванной комнатой и объединенное пространство кухни и гостиной, из которого можно пройти на террасу. Котельная также расположена на первом этаже и имеет отдельный вход из гардеробной. На втором этаже находятся две спальни с общей ванной и мастер-спальня. Из каждой комнаты есть выход на балкон с прозрачным ограждением, которое позволяет свободно любоваться окружающим пейзажем.

общая площадь
500 м²
площадь 1 этажа
270 м²
площадь 2 этажа
230 м²
этажность
2

Планы дома

Индивидуальный проект

1 этаж
2 этаж
Не можете найти подходящий проект?

Обсудим ваш будущий дом?

С чего начинается сотрудничество

Выберите идеальный сценарий начала сотрудничества со Starkwood

8 495 120-28-88
Москва
8 812 270-75-70
Санкт-Петербург
Свяжитесь с нашими
специалистами
Оставьте свои контактные данные, чтобы представители компании Starkwood связались с вами в ближайшее время и проконсультировали по всем вопросам.
Как удобнее с вами связаться
  • Написать в Viber
  • Написать в WhatsApp
  • Написать в Telegram
  • Отправить Sms
8 495 120-28-88
Москва
8 812 270-75-70
Санкт-Петербург
Свяжитесь с нашими
специалистами
Оставьте свои контактные данные, чтобы представители компании Starkwood связались с вами в ближайшее время и проконсультировали по всем вопросам.
Как удобнее с вами связаться
  • Написать в Viber
  • Написать в WhatsApp
  • Написать в Telegram
  • Отправить Sms
8 495 120-28-88
Москва
8 812 270-75-70
Санкт-Петербург
Свяжитесь с нашими
специалистами
Оставьте свои контактные данные, чтобы представители компании Starkwood связались с вами в ближайшее время и проконсультировали по всем вопросам.