Авиталь – ИНДИВИДУАЛЬНЫЙ ПРОЕКТ ДОМА ИЗ КЛЕЕНОГО БРУСА

О проекте

История создания

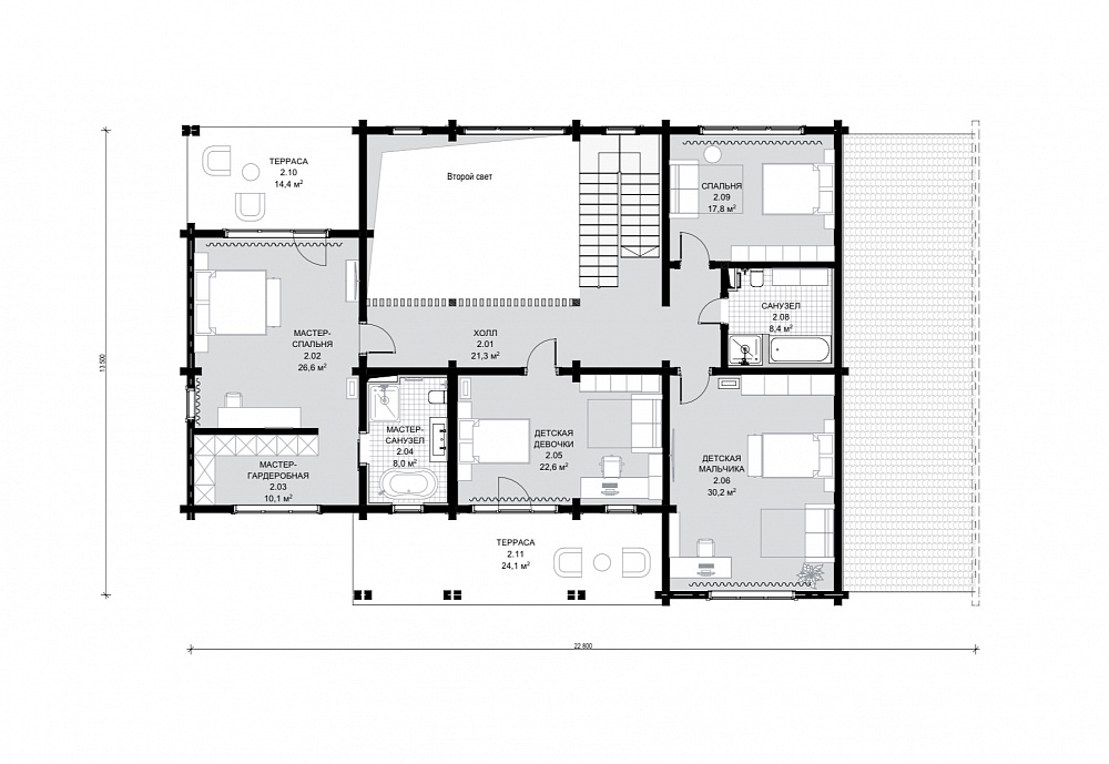
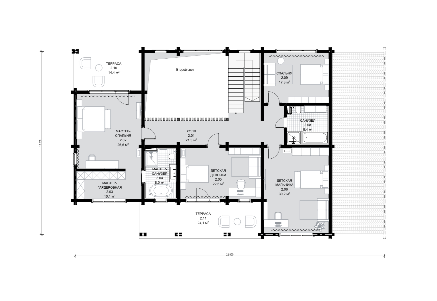
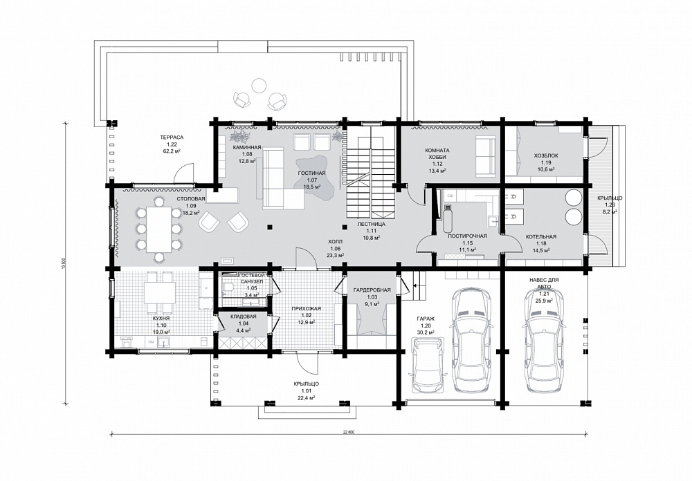
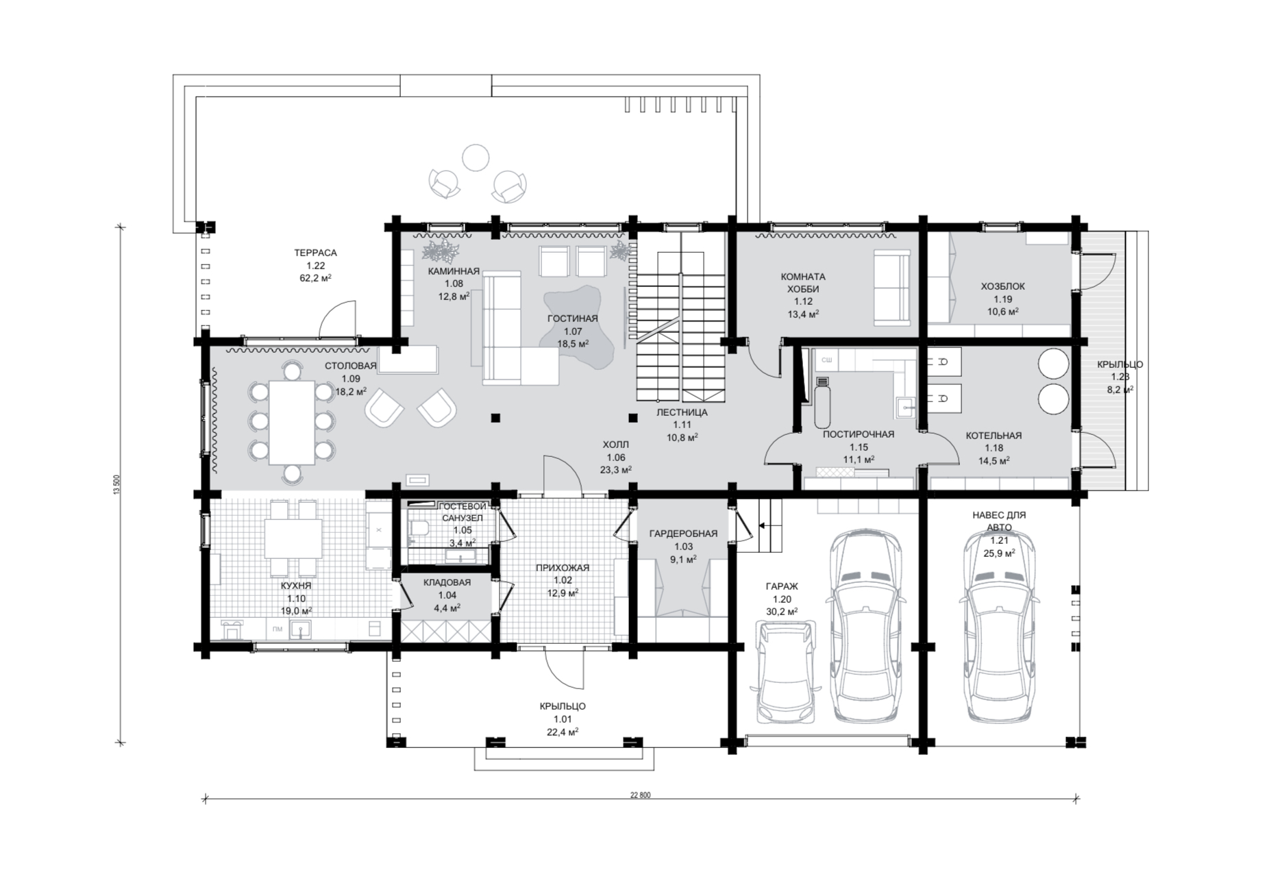
Двухэтажный дом оформлен в стиле современного шале и подходит для семьи из 4–5 человек. Сочетание натурального дерева бежевых тонов и отделочных панелей серого цвета придает внешнему облику дома особую графичность. Завершают образ открытые стропила и декоративные перголы. Широкое парадное крыльцо придает дому особую респектабельность. А планировка по оси позволяет расположить комнаты максимально удобно и функционально. Так, на первом этаже в правой части размещены технические помещения и гараж, а в левой находится общая зона с гостиной, оборудованной вторым светом. На втором этаже находятся гостевая и детские комнаты, мастер-спальня с отдельной ванной и две террасы. Выход на них расположен в детской и главной спальне. Проект Авиталь придется по вкусу тем, кто ценит практичность, комфорт и современную эстетику.

общая площадь
514 м²
площадь 1 этажа
331 м²
площадь 2 этажа
183 м²
этажность
2

Планы дома

Индивидуальный проект

1 этаж
2 этаж
Не можете найти подходящий проект?

Обсудим ваш будущий дом?

С чего начинается сотрудничество

Выберите идеальный сценарий начала сотрудничества со Starkwood

8 495 120-28-88
Москва
8 812 270-75-70
Санкт-Петербург
Свяжитесь с нашими
специалистами
Оставьте свои контактные данные, чтобы представители компании Starkwood связались с вами в ближайшее время и проконсультировали по всем вопросам.
Как удобнее с вами связаться
  • Написать в Viber
  • Написать в WhatsApp
  • Написать в Telegram
  • Отправить Sms
8 495 120-28-88
Москва
8 812 270-75-70
Санкт-Петербург
Свяжитесь с нашими
специалистами
Оставьте свои контактные данные, чтобы представители компании Starkwood связались с вами в ближайшее время и проконсультировали по всем вопросам.
Как удобнее с вами связаться
  • Написать в Viber
  • Написать в WhatsApp
  • Написать в Telegram
  • Отправить Sms
8 495 120-28-88
Москва
8 812 270-75-70
Санкт-Петербург
Свяжитесь с нашими
специалистами
Оставьте свои контактные данные, чтобы представители компании Starkwood связались с вами в ближайшее время и проконсультировали по всем вопросам.