Азалия – ИНДИВИДУАЛЬНЫЙ ПРОЕКТ ДОМА ИЗ КЛЕЕНОГО БРУСА

О проекте

Основные параметры

Классический двухэтажный дом из клееного бруса. Архитектурная композиция дома построена на принципах симметрии. Более современный облик Азалия имеет благодаря небольшому уклону кровли, возможному за счет применения современной технологичной черепицы, большим панорамным окнам, композиционно объединенным на фасаде декоративными решетками, а также благодаря смелому цветовому решению наличников, окрашенных в пурпурно-красный. Консольно выступающая над землей терраса, огибающая дом с 3х сторон, а также балконы второго этажа обеспечивают возможность в любую секунду оказаться на свежем воздухе. Объёмно-планировочное решение дома предполагает распределение приватных и общественных функций по этажам. Почти все спальни с гардеробами и санузлами находятся на мансардном этаже. Гостиная, кухня и столовая расположены в едином пространстве, функциональное зонирование которого осуществляется с помощью тщательно продуманной расстановки мебели.

общая площадь
425 м²
площадь 1 этажа
283 м²
площадь 2 этажа
142 м²
этажность
2

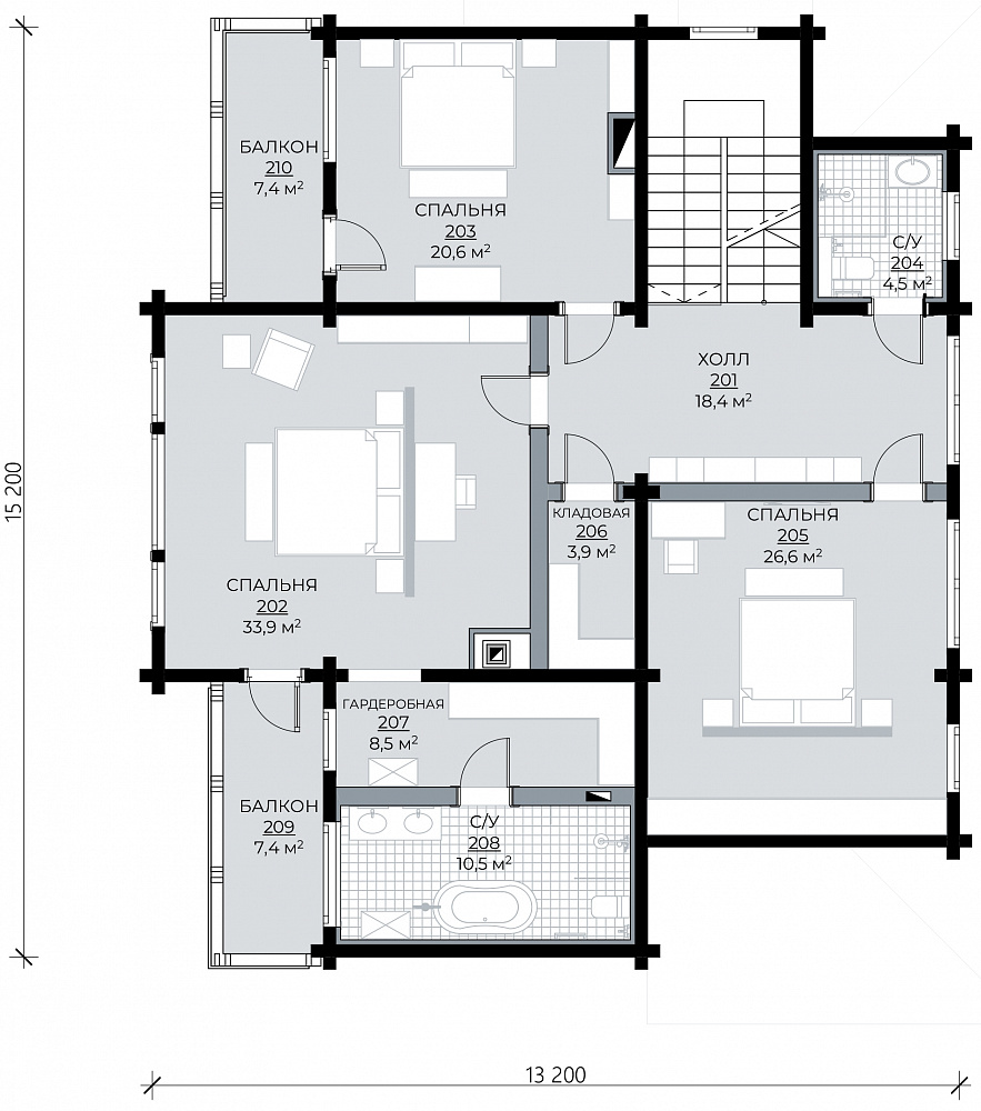
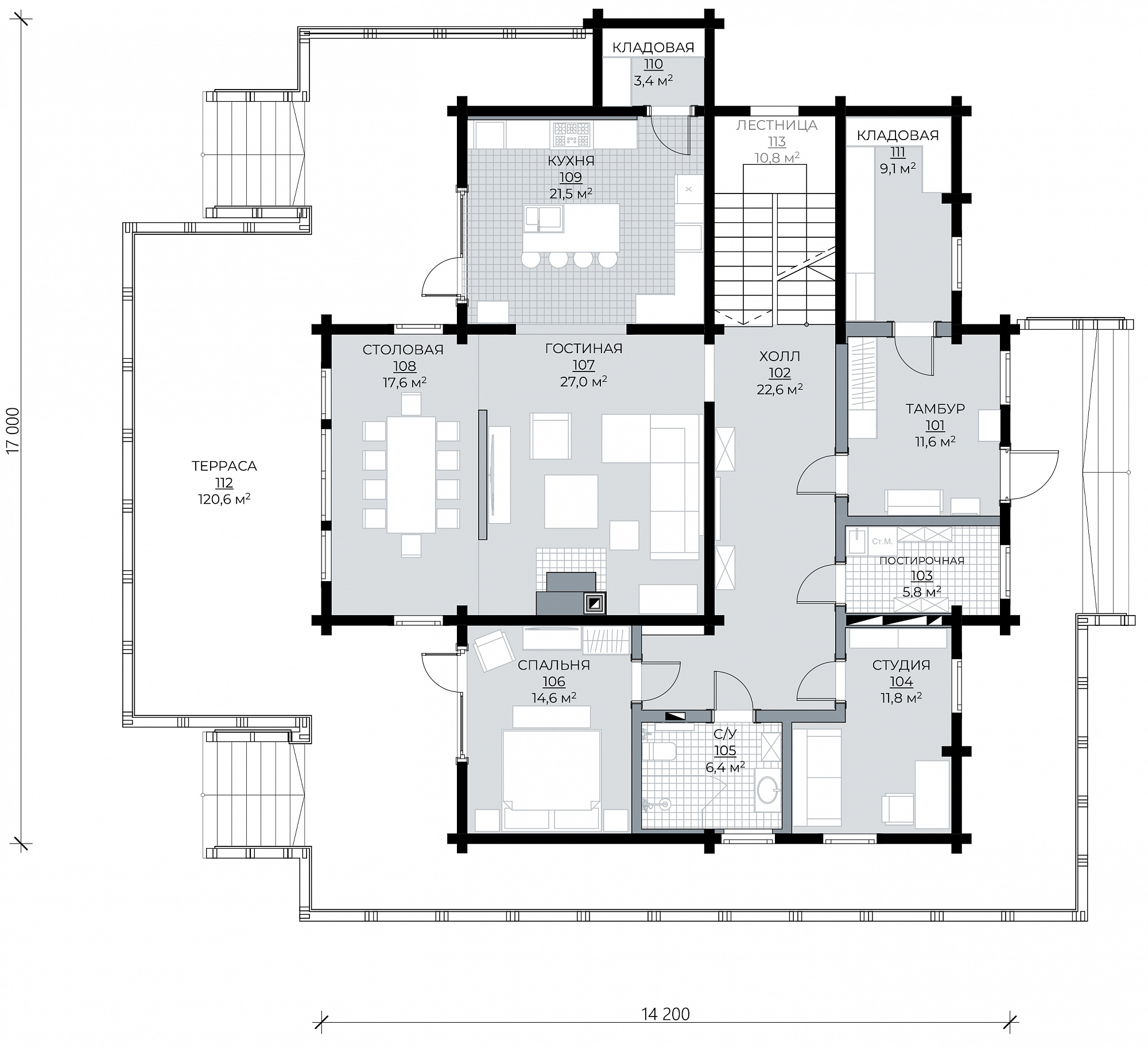
Планы дома

Индивидуальный проект

1 этаж
2 этаж
Не можете найти подходящий проект?

Обсудим ваш будущий дом?

С чего начинается сотрудничество

Выберите идеальный сценарий начала сотрудничества со Starkwood

8 495 120-28-88
Москва
8 812 270-75-70
Санкт-Петербург
Свяжитесь с нашими
специалистами
Оставьте свои контактные данные, чтобы представители компании Starkwood связались с вами в ближайшее время и проконсультировали по всем вопросам.
Как удобнее с вами связаться
  • Написать в Viber
  • Написать в WhatsApp
  • Написать в Telegram
  • Отправить Sms
8 495 120-28-88
Москва
8 812 270-75-70
Санкт-Петербург
Свяжитесь с нашими
специалистами
Оставьте свои контактные данные, чтобы представители компании Starkwood связались с вами в ближайшее время и проконсультировали по всем вопросам.
Как удобнее с вами связаться
  • Написать в Viber
  • Написать в WhatsApp
  • Написать в Telegram
  • Отправить Sms
8 495 120-28-88
Москва
8 812 270-75-70
Санкт-Петербург
Свяжитесь с нашими
специалистами
Оставьте свои контактные данные, чтобы представители компании Starkwood связались с вами в ближайшее время и проконсультировали по всем вопросам.