Бенталь – ИНДИВИДУАЛЬНЫЙ ПРОЕКТ ДОМА ИЗ КЛЕЕНОГО БРУСА

О проекте

История создания

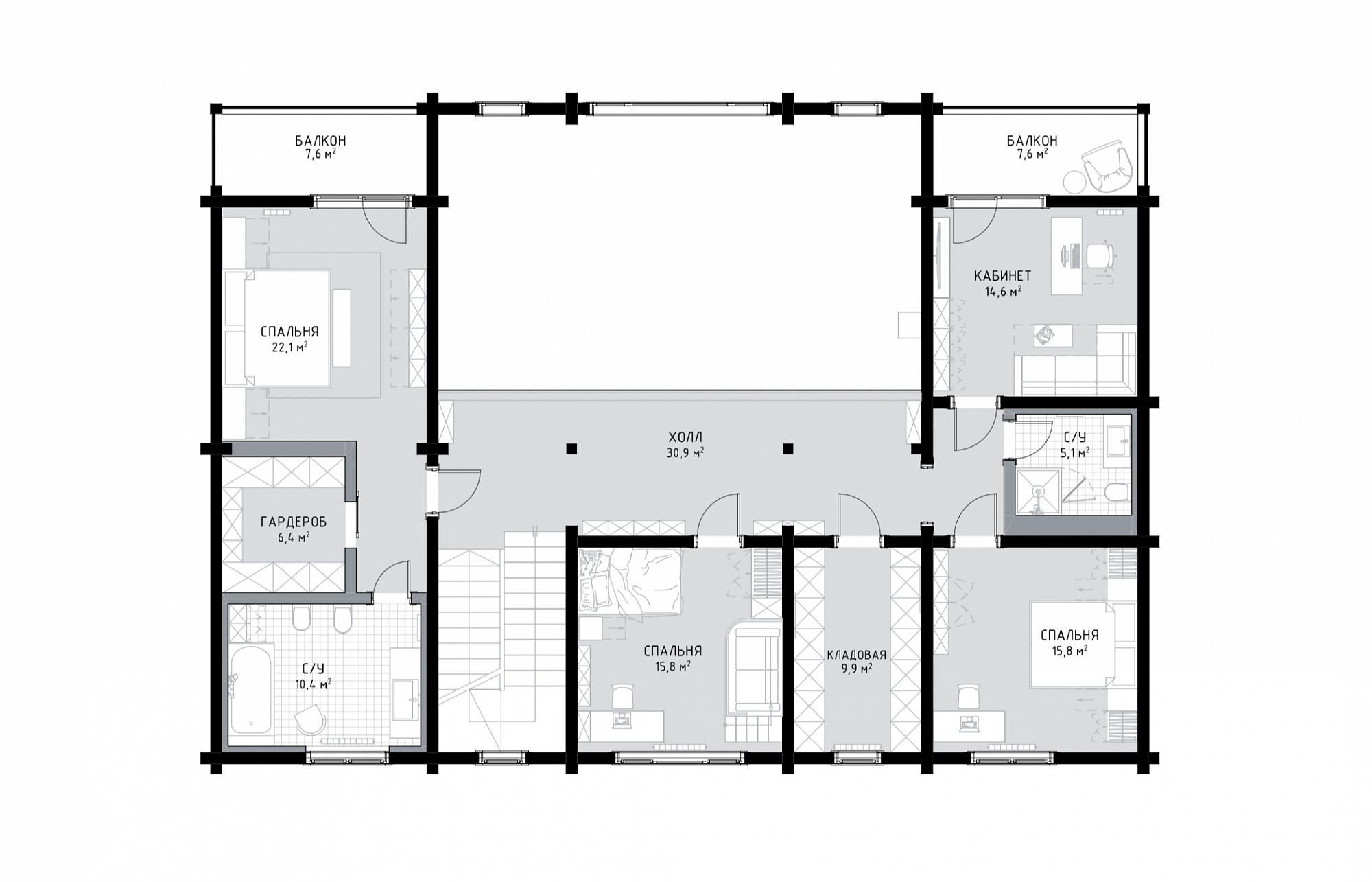
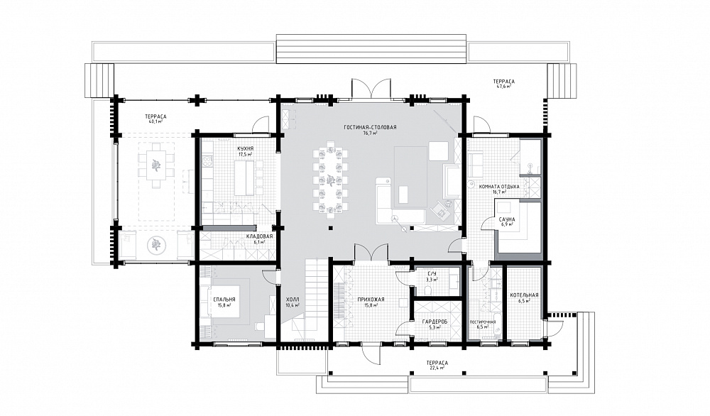
Двухэтажный загородный дом в стиле шале рассчитан на семью из 4 человек. Темные наличники и кровля в сочетании с теплым оттенком стен подчеркивают графичность фасадов. Планировка дома функциональна и симметрична. На первом этаже расположены хозяйственная зона, прихожая, гостевая комната с ванной, гардеробная, комната отдыха с сауной. В центральной части первого этажа находится гостиная-столовая со вторым светом, оборудованная камином. Из гостиной есть выход на открытую веранду. Из кухни с примыкающей к ней кладовой можно выйти на теплую веранду. Здесь в течение всего года приятно наслаждаться видами пейзажа. На втором этаже находится мастер-спальня с ванной комнатой и гардеробной, две детских, общая ванная и кабинет. Проект “Бенталь” оценят те, кому важны практичность и удобство.

общая площадь
444 м²
площадь 1 этажа
298 м²
площадь 2 этажа
146 м²
этажность
2

Планы дома

Индивидуальный проект

1 этаж
2 этаж
Не можете найти подходящий проект?

Обсудим ваш будущий дом?

С чего начинается сотрудничество

Выберите идеальный сценарий начала сотрудничества со Starkwood

8 495 120-28-88
Москва
8 812 270-75-70
Санкт-Петербург
Свяжитесь с нашими
специалистами
Оставьте свои контактные данные, чтобы представители компании Starkwood связались с вами в ближайшее время и проконсультировали по всем вопросам.
Как удобнее с вами связаться
  • Написать в Viber
  • Написать в WhatsApp
  • Написать в Telegram
  • Отправить Sms
8 495 120-28-88
Москва
8 812 270-75-70
Санкт-Петербург
Свяжитесь с нашими
специалистами
Оставьте свои контактные данные, чтобы представители компании Starkwood связались с вами в ближайшее время и проконсультировали по всем вопросам.
Как удобнее с вами связаться
  • Написать в Viber
  • Написать в WhatsApp
  • Написать в Telegram
  • Отправить Sms
8 495 120-28-88
Москва
8 812 270-75-70
Санкт-Петербург
Свяжитесь с нашими
специалистами
Оставьте свои контактные данные, чтобы представители компании Starkwood связались с вами в ближайшее время и проконсультировали по всем вопросам.