Бромо – ИНДИВИДУАЛЬНЫЙ ПРОЕКТ ДОМА ИЗ КЛЕЕНОГО БРУСА

О проекте

История создания

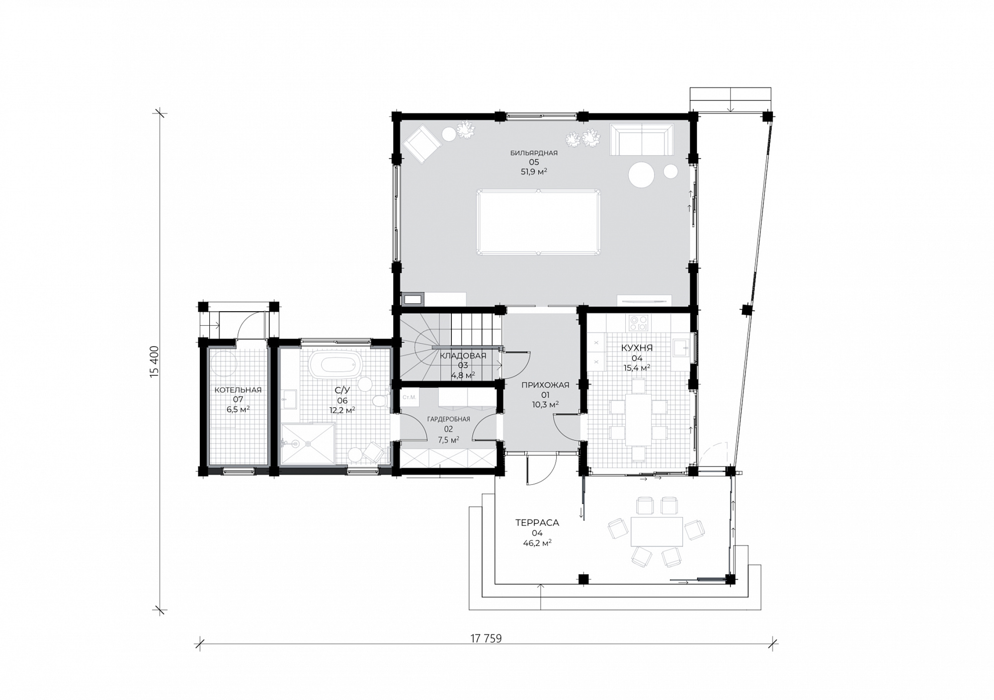
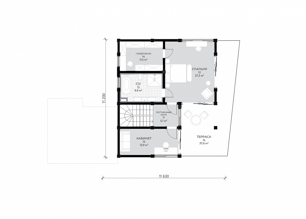
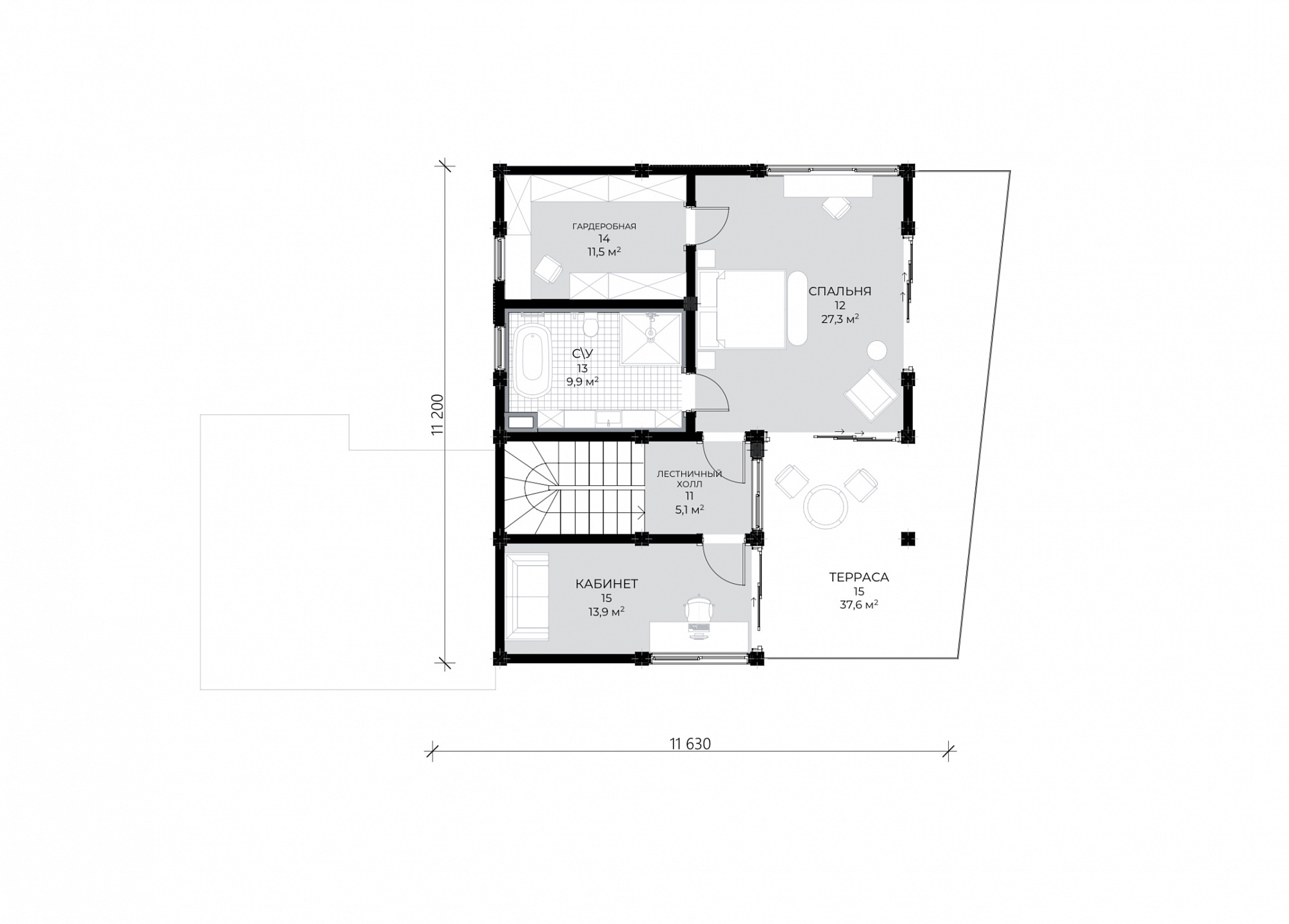
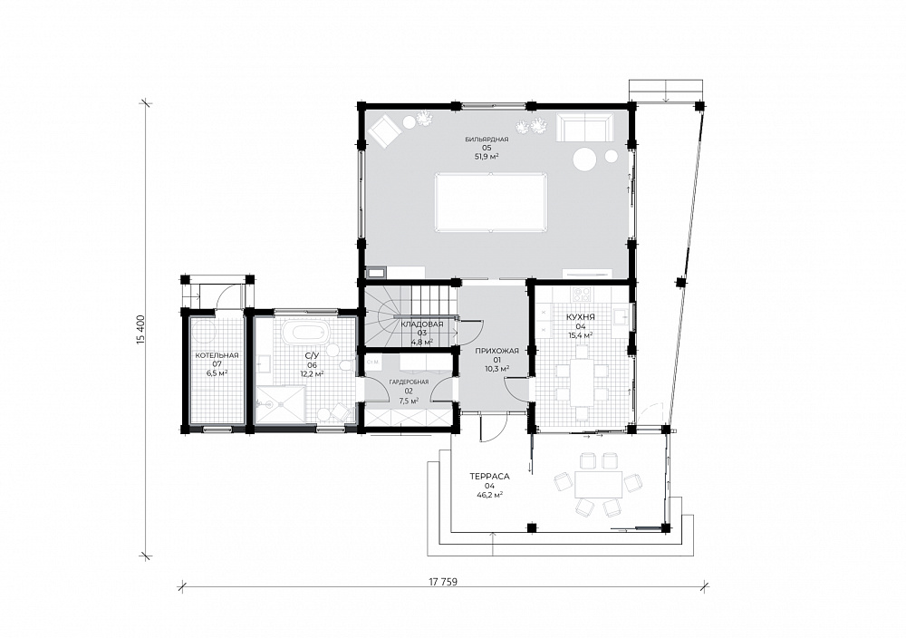
Двухэтажный дом в современном стиле построен по технологии фахверк. Оригинальная, сложная геометрия контуров, позволяет органично вписать дом в ландшафт. С просторных террас первого и второго этажа открывается живописный вид на участок. Парящие скаты крыши придают дому особый шарм и легкость. На первом этаже находятся кухня, прихожая, гардеробная, ванная комната и большая бильярдная. В доме оборудована котельная с отдельным выходом на улицу, что позволяет не беспокоить хозяев при обслуживании техники. На втором этаже располагается спальня, гардеробная, ванная и кабинет. Проект «Бромо» предназначен для тех, кому важны стиль и единение с природой.

общая площадь
269 м²
площадь 1 этажа
157
площадь 2 этажа
112
этажность
2

Планы дома

Индивидуальный проект

1 этаж
2 этаж
Не можете найти подходящий проект?

Обсудим ваш будущий дом?

С чего начинается сотрудничество

Выберите идеальный сценарий начала сотрудничества со Starkwood

8 495 120-28-88
Москва
8 812 270-75-70
Санкт-Петербург
Свяжитесь с нашими
специалистами
Оставьте свои контактные данные, чтобы представители компании Starkwood связались с вами в ближайшее время и проконсультировали по всем вопросам.
Как удобнее с вами связаться
  • Написать в Viber
  • Написать в WhatsApp
  • Написать в Telegram
  • Отправить Sms
8 495 120-28-88
Москва
8 812 270-75-70
Санкт-Петербург
Свяжитесь с нашими
специалистами
Оставьте свои контактные данные, чтобы представители компании Starkwood связались с вами в ближайшее время и проконсультировали по всем вопросам.
Как удобнее с вами связаться
  • Написать в Viber
  • Написать в WhatsApp
  • Написать в Telegram
  • Отправить Sms
8 495 120-28-88
Москва
8 812 270-75-70
Санкт-Петербург
Свяжитесь с нашими
специалистами
Оставьте свои контактные данные, чтобы представители компании Starkwood связались с вами в ближайшее время и проконсультировали по всем вопросам.