Крокус – ИНДИВИДУАЛЬНЫЙ ПРОЕКТ ДОМА ИЗ КЛЕЕНОГО БРУСА

О проекте

Основные параметры проекта

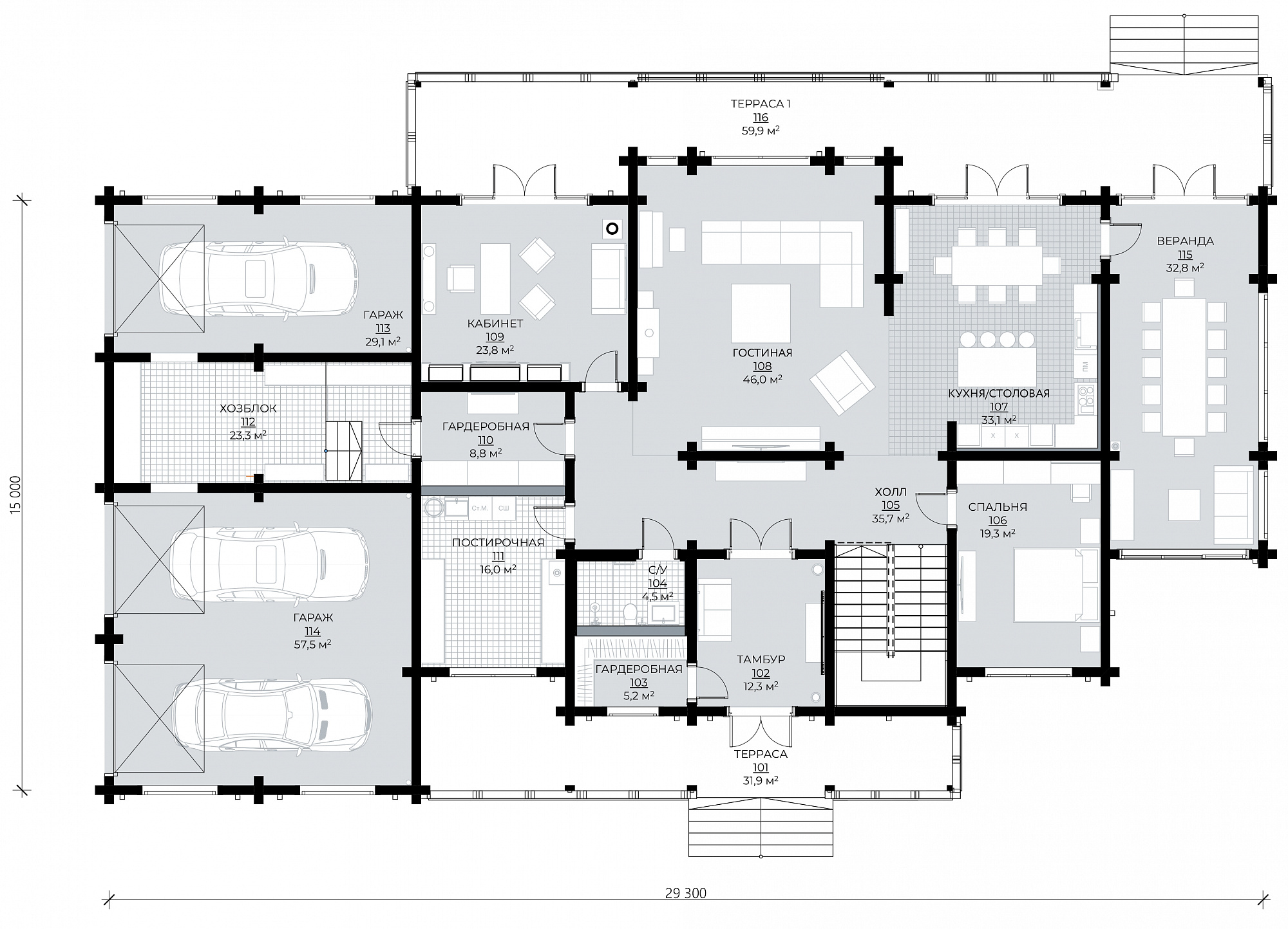
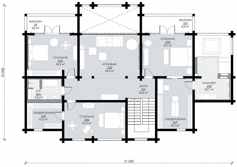
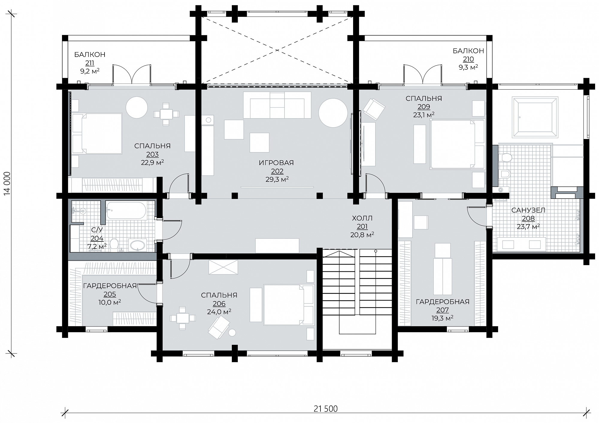
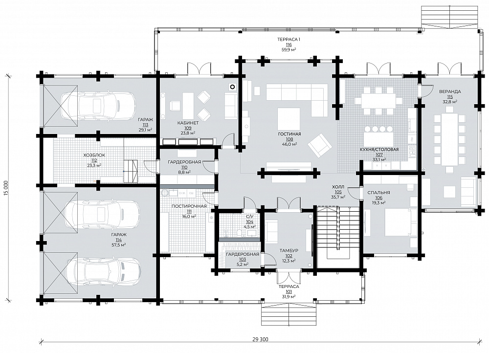
Двухэтажный дом из клееного бруса в классическом стиле. Брутальный дом с тёмно-серыми фасадами и такими же тёмными наличниками благородного зелёного оттенка. Архитектура смотрится очень тектонично за счёт каскадного понижения уровней крыш. Также у дома богатая пластика фасадов за счёт террас и балконов. Терраса со стороны заднего двора накрыта светопрозрачной кровлей. В доме четыре спальни, одна из которых находится на первом этаже; есть кабинет и остеклённая веранда, а холл, гостиная и кухня объединены в большое перетекающее пространство. На мансардном этаже расположена большая игровая комната со вторым светом с видом на гостиную.

общая площадь
637 м²
площадь 1 этажа
438 м²
площадь 2 этажа
199 м²
этажность
2

Планировка дома по проекту Крокус

Индивидуальный проект

1 этаж
2 этаж
Не можете найти подходящий проект?

Обсудим ваш будущий дом?

С чего начинается сотрудничество

Выберите идеальный сценарий начала сотрудничества со Starkwood

8 495 120-28-88
Москва
8 812 270-75-70
Санкт-Петербург
Свяжитесь с нашими
специалистами
Оставьте свои контактные данные, чтобы представители компании Starkwood связались с вами в ближайшее время и проконсультировали по всем вопросам.
Как удобнее с вами связаться
  • Написать в Viber
  • Написать в WhatsApp
  • Написать в Telegram
  • Отправить Sms
8 495 120-28-88
Москва
8 812 270-75-70
Санкт-Петербург
Свяжитесь с нашими
специалистами
Оставьте свои контактные данные, чтобы представители компании Starkwood связались с вами в ближайшее время и проконсультировали по всем вопросам.
Как удобнее с вами связаться
  • Написать в Viber
  • Написать в WhatsApp
  • Написать в Telegram
  • Отправить Sms
8 495 120-28-88
Москва
8 812 270-75-70
Санкт-Петербург
Свяжитесь с нашими
специалистами
Оставьте свои контактные данные, чтобы представители компании Starkwood связались с вами в ближайшее время и проконсультировали по всем вопросам.