Дальний берег – ИНДИВИДУАЛЬНЫЙ ПРОЕКТ ДОМА ИЗ КЛЕЕНОГО БРУСА

О проекте

История создания

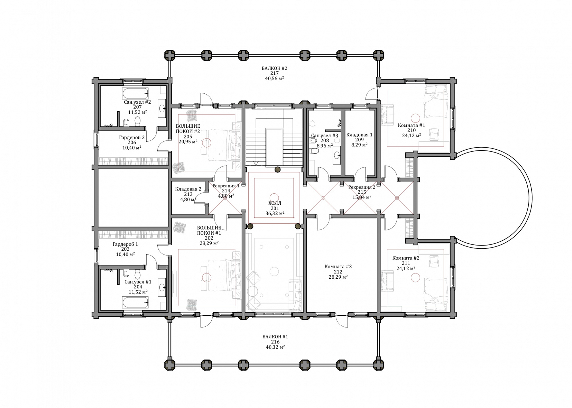
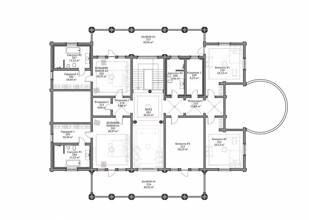
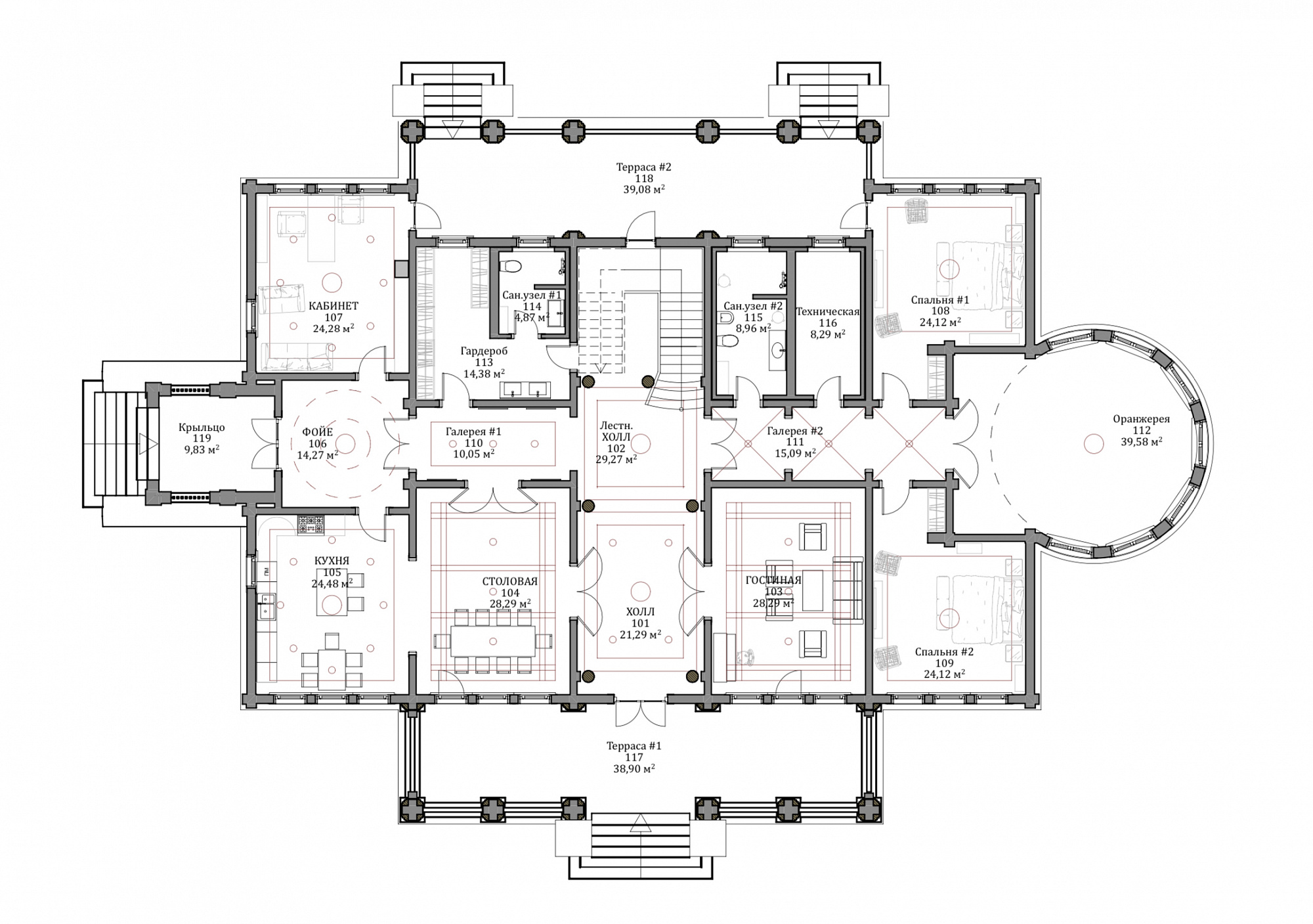
В рамках направления «Старково», цель которого — возрождение дворянской усадьбы, мы разработали проект «Дальний берег». Его уникальная планировка одновременно ориентирована на архитектуру знаменитой усадьбы Горки Ленинские и на лучшие современные образцы частных владений. Резиденция рассчитана на семью из четырёх человек. Уютное общее пространство гостиной, столовой и кухни спроектировано по принципу анфилады. Сквозь весь первый этаж, отделяя жилую часть от технических и вспомогательных помещений, проходит просторная галерея. Она ведёт от главного входа в зимнюю оранжерею. В галерее можно проводить светские приёмы и организовывать праздничные мероприятия. Помимо этого, на первом этаже находятся две просторные гостевые комнаты с отдельными ванными. Такое расположение спален позволяет гостям и хозяевам чувствовать себя более свободно и комфортно и соблюдать личные границы друг друга. Хозяйский кабинет мы разместили рядом с главным входом. Это даёт возможность эффективно работать, проводить совещания и принимать деловых партнеров в удобной обстановке с соблюдением целостности личного пространства. На втором этаже находятся большие хозяйские покои. В них есть просторный гардероб и отдельная ванная комната. Напротив мастер-спальни расположены детские комнаты со своими гардеробными и ваннами. Широкий холл второго этажа выходит на балкон, с которого открывается вид на живописный пейзаж. В холле есть возможность оборудовать библиотеку или разместить хозяйскую коллекцию. Усадьба «Дальний берег» подходит тем, кто заботится о своей репутации, ценит оригинальный подход к планированию пространства и с уважением относится к культурному наследию нашей страны.

общая площадь
736 м²
площадь 1 этажа
408 м²
площадь 2 этажа
328 м²
этажность
2

Планы дома

Индивидуальный проект

1 этаж
2 этаж
Не можете найти подходящий проект?

Обсудим ваш будущий дом?

С чего начинается сотрудничество

Выберите идеальный сценарий начала сотрудничества со Starkwood

8 495 120-28-88
Москва
8 812 270-75-70
Санкт-Петербург
Свяжитесь с нашими
специалистами
Оставьте свои контактные данные, чтобы представители компании Starkwood связались с вами в ближайшее время и проконсультировали по всем вопросам.
Как удобнее с вами связаться
  • Написать в Viber
  • Написать в WhatsApp
  • Написать в Telegram
  • Отправить Sms
8 495 120-28-88
Москва
8 812 270-75-70
Санкт-Петербург
Свяжитесь с нашими
специалистами
Оставьте свои контактные данные, чтобы представители компании Starkwood связались с вами в ближайшее время и проконсультировали по всем вопросам.
Как удобнее с вами связаться
  • Написать в Viber
  • Написать в WhatsApp
  • Написать в Telegram
  • Отправить Sms
8 495 120-28-88
Москва
8 812 270-75-70
Санкт-Петербург
Свяжитесь с нашими
специалистами
Оставьте свои контактные данные, чтобы представители компании Starkwood связались с вами в ближайшее время и проконсультировали по всем вопросам.