Дарна – ИНДИВИДУАЛЬНЫЙ ПРОЕКТ ДОМА ИЗ КЛЕЕНОГО БРУСА

О проекте

Основные параметры проекта

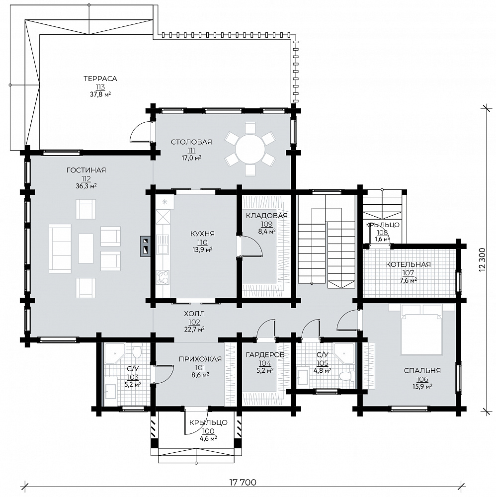
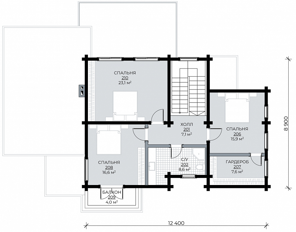
Очень лаконичный, современный дом с интересным решением проходной кухни со столовой, переходящей в гостиную, что создает общую открытую структуру внутреннего пространства, при этом не мешающие друг другу функционально. В доме имеется 4 спальни, что позволяет проживать в нем семье из 5-6 человек. Архитектура дома основана на простоте форм, которые подчеркнуты контрастными декоративными элементами, что создает его современный, индивидуальный образ.

общая площадь
271 м²
площадь 1 этажа
188 м²
площадь 2 этажа
83 м²
этажность
2

Планы этажей дома

Индивидуальный проект

1 этаж
2 этаж
Не можете найти подходящий проект?

Обсудим ваш будущий дом?

С чего начинается сотрудничество

Выберите идеальный сценарий начала сотрудничества со Starkwood

8 495 120-28-88
Москва
8 812 270-75-70
Санкт-Петербург
Свяжитесь с нашими
специалистами
Оставьте свои контактные данные, чтобы представители компании Starkwood связались с вами в ближайшее время и проконсультировали по всем вопросам.
Как удобнее с вами связаться
  • Написать в Viber
  • Написать в WhatsApp
  • Написать в Telegram
  • Отправить Sms
8 495 120-28-88
Москва
8 812 270-75-70
Санкт-Петербург
Свяжитесь с нашими
специалистами
Оставьте свои контактные данные, чтобы представители компании Starkwood связались с вами в ближайшее время и проконсультировали по всем вопросам.
Как удобнее с вами связаться
  • Написать в Viber
  • Написать в WhatsApp
  • Написать в Telegram
  • Отправить Sms
8 495 120-28-88
Москва
8 812 270-75-70
Санкт-Петербург
Свяжитесь с нашими
специалистами
Оставьте свои контактные данные, чтобы представители компании Starkwood связались с вами в ближайшее время и проконсультировали по всем вопросам.