Эльба – ИНДИВИДУАЛЬНЫЙ ПРОЕКТ ДОМА ИЗ КЛЕЕНОГО БРУСА

О проекте

История создания

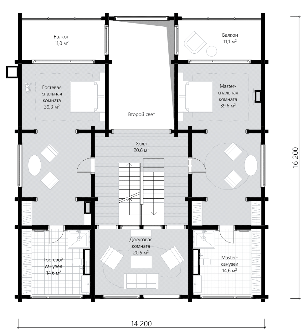
Проект в стиле шале рассчитан на семью из 3—4 человек. Многоярусная крыша с широкими скатами придает облику дома легкость и современность. Большие панорамные окна наполняют внутреннее пространство дома светом. А две просторные террасы позволяют отдыхать на свежем воздухе и любоваться окружающими пейзажами даже в непогоду. Главный вход ведет в просторную прихожую с вместительной гардеробной. Из прихожей есть удобный вход в теплый гараж. Центральная часть дома представляет собой пространство со вторым светом и выходом на террасу. В этой зоне расположены кухня и гостиная-столовая с камином. К общему пространству примыкает SPA-зона с сауной. Кроме того, на первом этаже расположены гостевая спальня, прачечная и котельная с отдельным входом. На втором этаже находится мастер-блок и спальня с собственной ванной. Из каждой комнаты есть выход на отдельные балконы. В центральной части второго этажа расположена общая зона отдыха, где можно собраться всей семьей и провести вечер вместе — или уединиться с книгой и отдохнуть наедине с собой. Этот проект подходит любителям современного прочтения классической архитектуры, которые ценят комфортный отдых в кругу близких людей.

общая площадь
497 м²
площадь 1 этажа
325 м²
площадь 2 этажа
171 м²
этажность
2

Планы дома

Индивидуальный проект

1 этаж
2 этаж
Не можете найти подходящий проект?

Обсудим ваш будущий дом?

С чего начинается сотрудничество

Выберите идеальный сценарий начала сотрудничества со Starkwood

8 495 120-28-88
Москва
8 812 270-75-70
Санкт-Петербург
Свяжитесь с нашими
специалистами
Оставьте свои контактные данные, чтобы представители компании Starkwood связались с вами в ближайшее время и проконсультировали по всем вопросам.
Как удобнее с вами связаться
  • Написать в Viber
  • Написать в WhatsApp
  • Написать в Telegram
  • Отправить Sms
8 495 120-28-88
Москва
8 812 270-75-70
Санкт-Петербург
Свяжитесь с нашими
специалистами
Оставьте свои контактные данные, чтобы представители компании Starkwood связались с вами в ближайшее время и проконсультировали по всем вопросам.
Как удобнее с вами связаться
  • Написать в Viber
  • Написать в WhatsApp
  • Написать в Telegram
  • Отправить Sms
8 495 120-28-88
Москва
8 812 270-75-70
Санкт-Петербург
Свяжитесь с нашими
специалистами
Оставьте свои контактные данные, чтобы представители компании Starkwood связались с вами в ближайшее время и проконсультировали по всем вопросам.