Хоста – ИНДИВИДУАЛЬНЫЙ ПРОЕКТ ДОМА ИЗ КЛЕЕНОГО БРУСА

О проекте

Основные параметры проекта

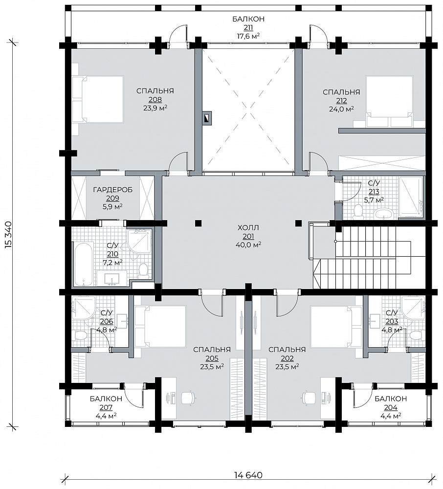
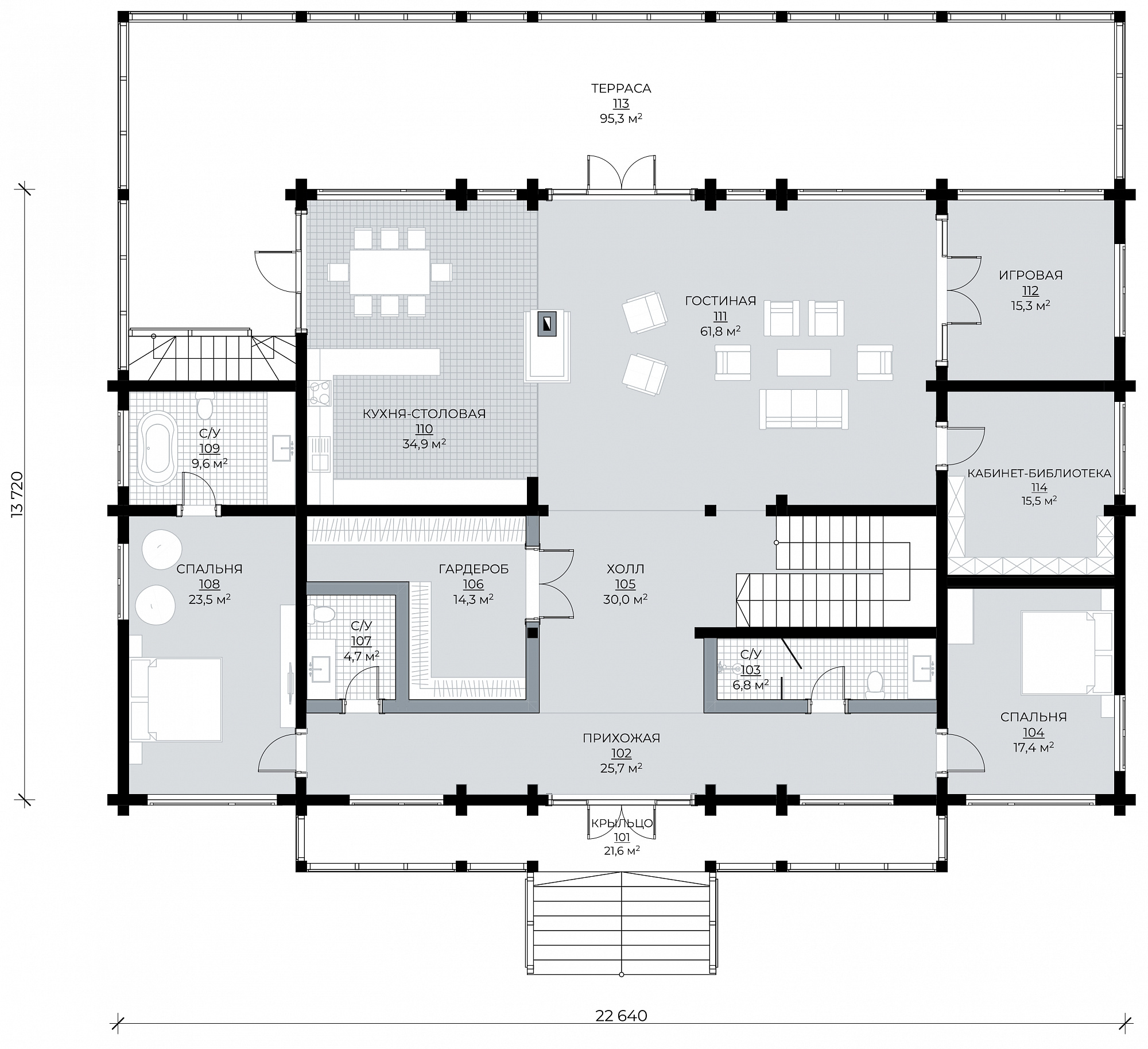
Просторный жилой дом в стиле Шале для семьи из 5-7 человек, где каждая спальня оснащена собственным санузлом и некоторые из них с гардеробными помещениями. Дом оснащен цокольным этажом под всей его площадью, в котором размещены технические помещения, кладовые, помещения для обслуживающего персонала и вторая кухня для удобства использования просторной террасы цокольного этажа. Основная жилая зона дома решена в студийным типом: просторная гостиная с кухней и столовой составляют почти 100 м/кв. и имеет большие видовые окна в сторону участка. Архитектура дома удачно вяжется с природным, загородным пейзажем на склоне, вписываясь в ландшафт окружающей среды.

общая площадь
556 м²
площадь 1 этажа
378 м²
площадь 2 этажа
178 м²
этажность
2

Планы этажей дома

Индивидуальный проект

1 этаж
2 этаж
Не можете найти подходящий проект?

Обсудим ваш будущий дом?

С чего начинается сотрудничество

Выберите идеальный сценарий начала сотрудничества со Starkwood

8 495 120-28-88
Москва
8 812 270-75-70
Санкт-Петербург
Свяжитесь с нашими
специалистами
Оставьте свои контактные данные, чтобы представители компании Starkwood связались с вами в ближайшее время и проконсультировали по всем вопросам.
Как удобнее с вами связаться
  • Написать в Viber
  • Написать в WhatsApp
  • Написать в Telegram
  • Отправить Sms
8 495 120-28-88
Москва
8 812 270-75-70
Санкт-Петербург
Свяжитесь с нашими
специалистами
Оставьте свои контактные данные, чтобы представители компании Starkwood связались с вами в ближайшее время и проконсультировали по всем вопросам.
Как удобнее с вами связаться
  • Написать в Viber
  • Написать в WhatsApp
  • Написать в Telegram
  • Отправить Sms
8 495 120-28-88
Москва
8 812 270-75-70
Санкт-Петербург
Свяжитесь с нашими
специалистами
Оставьте свои контактные данные, чтобы представители компании Starkwood связались с вами в ближайшее время и проконсультировали по всем вопросам.