Когу – ИНДИВИДУАЛЬНЫЙ ПРОЕКТ ДОМА ИЗ КЛЕЕНОГО БРУСА

О проекте

История создания

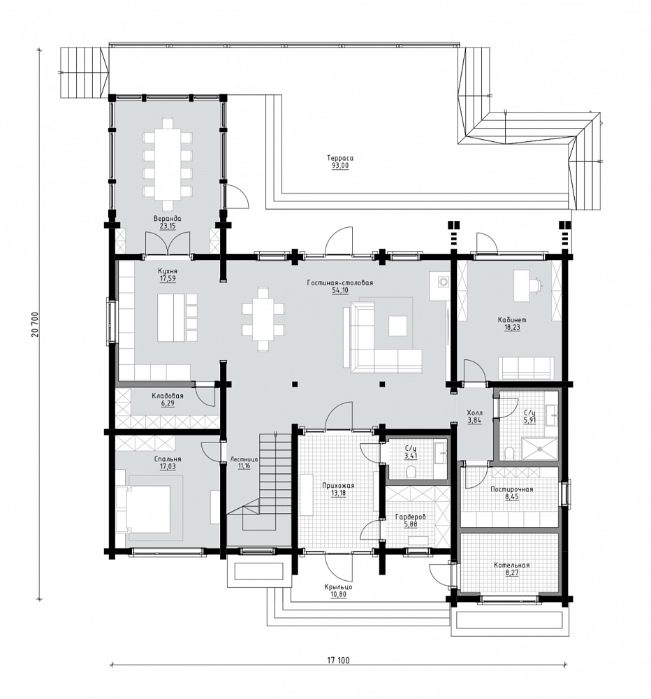
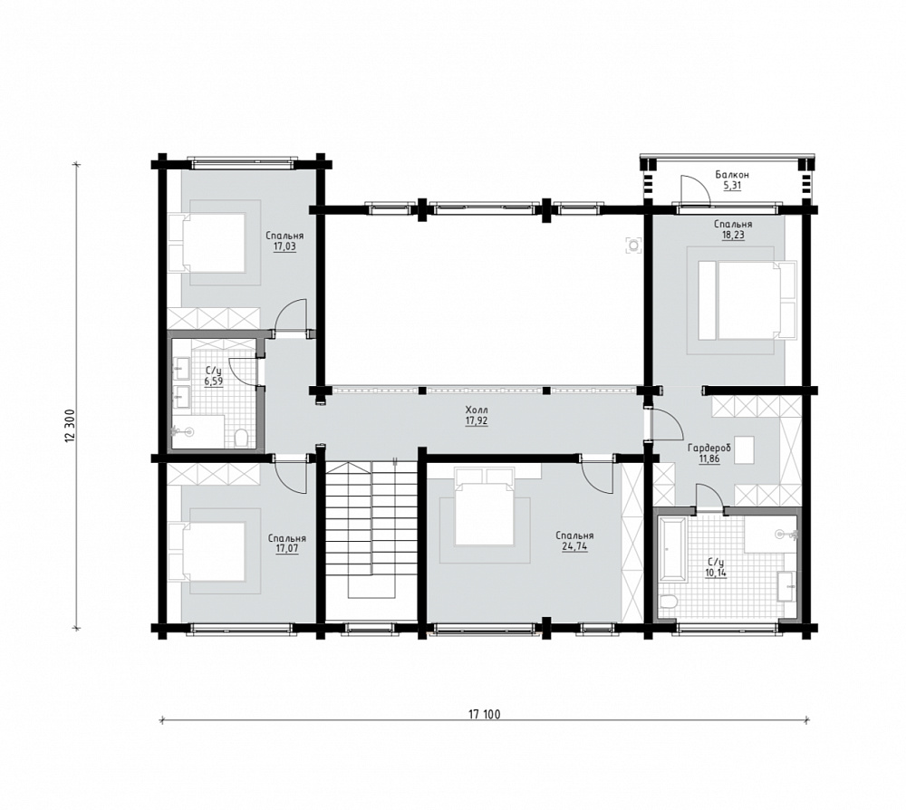
Проект в современном стиле разработан для семьи из 5 человек. Декоративные детали на фасадах дополняют лаконичную архитектуру дома. Портал на главном входе и акцентный навес эффектно выделяют центральную часть. А односкатные, симметрично расположенные крыши завершают образ. На первом этаже расположена просторная прихожая, к которой примыкают гардероб и гостевая ванная. Центральная часть дома представляет собой пространство со вторым светом и панорамным остеклением. В этой зоне находится гостиная-столовая с выходом на открытую террасу. Рядом с гостиной размещена кухня с удобной кладовой и выходом на теплую веранду. Кроме того, на первом этаже расположены гостевая спальня, хозяйский кабинет, ванная комната, прачечная и котельная с отдельным входом. На втором этаже находится мастер-блок, состоящий из спальни, отдельной гардеробной и ванной. Кроме того, на втором этаже расположены еще три спальни с общей ванной комнатой. Современная архитектура, в которой функциональность и практичность сочетаются с эстетикой и уютом.

общая площадь
429 м²
площадь 1 этажа
300 м²
площадь 2 этажа
129 м²
этажность
2

Планы дома

Индивидуальный проект

1 этаж
2 этаж
Не можете найти подходящий проект?

Обсудим ваш будущий дом?

С чего начинается сотрудничество

Выберите идеальный сценарий начала сотрудничества со Starkwood

8 495 120-28-88
Москва
8 812 270-75-70
Санкт-Петербург
Свяжитесь с нашими
специалистами
Оставьте свои контактные данные, чтобы представители компании Starkwood связались с вами в ближайшее время и проконсультировали по всем вопросам.
Как удобнее с вами связаться
  • Написать в Viber
  • Написать в WhatsApp
  • Написать в Telegram
  • Отправить Sms
8 495 120-28-88
Москва
8 812 270-75-70
Санкт-Петербург
Свяжитесь с нашими
специалистами
Оставьте свои контактные данные, чтобы представители компании Starkwood связались с вами в ближайшее время и проконсультировали по всем вопросам.
Как удобнее с вами связаться
  • Написать в Viber
  • Написать в WhatsApp
  • Написать в Telegram
  • Отправить Sms
8 495 120-28-88
Москва
8 812 270-75-70
Санкт-Петербург
Свяжитесь с нашими
специалистами
Оставьте свои контактные данные, чтобы представители компании Starkwood связались с вами в ближайшее время и проконсультировали по всем вопросам.