Комо – ИНДИВИДУАЛЬНЫЙ ПРОЕКТ ДОМА ИЗ КЛЕЕНОГО БРУСА

О проекте

История создания

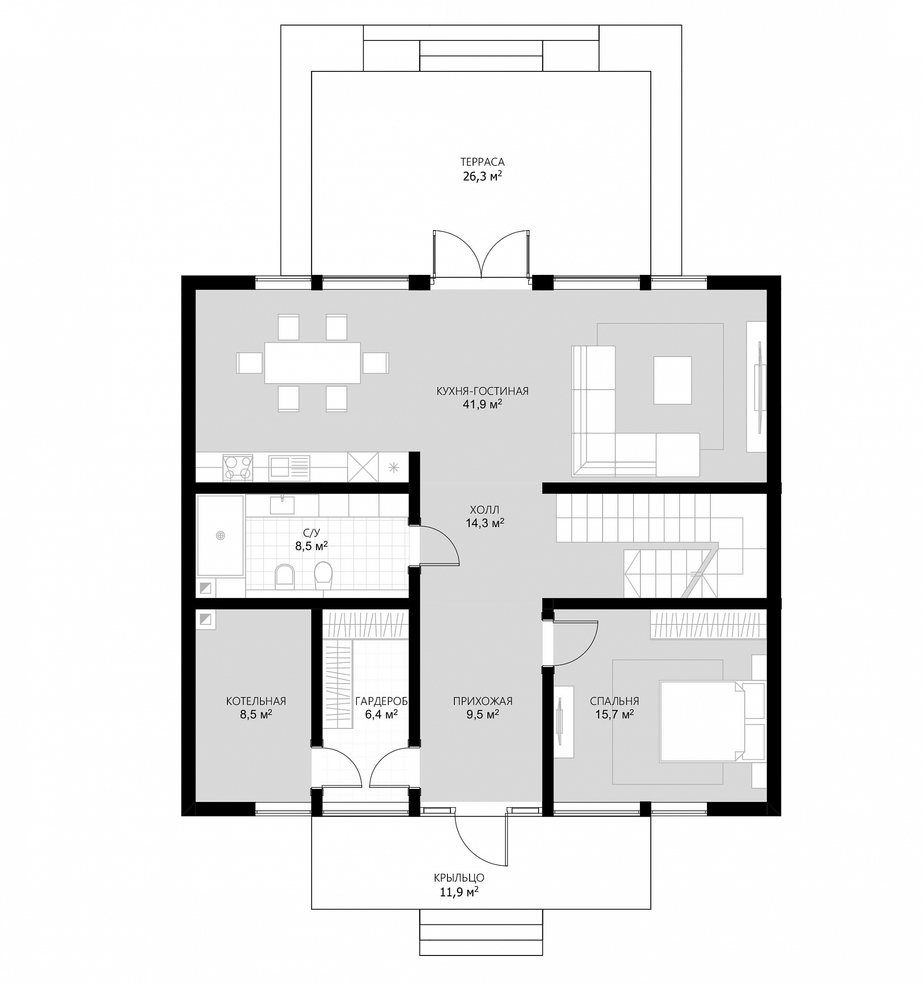
Двухэтажный дом построен по технологии фахверк. Фасады отделаны светло-серыми деревянными панелями Панорамные окна делают облик дома более легким и изящным. Балконы второго этажа огорожены прозрачным парапетом с красной акцентной отделкой. На террасе, выходящей во внутренний двор, есть видовой камин. Внутренняя планировка дома просторна и удобна. Из холла легко попасть в гардеробную, объединенное пространство гостиной и кухни-столовой и в гостевую спальню, примыкающую к ванной комнате и прачечной. В котельную ведет отдельный вход из внутреннего двора. На втором этаже расположены мастер-спальня и две комнаты с отдельными ванными и гардеробными. В холле второго этажа есть уютная зона для отдыха и чтения.

общая площадь
263 м²
площадь 1 этажа
143 м²
площадь 2 этажа
120 м²
этажность
2

Планы дома

Индивидуальный проект

1 этаж
2 этаж
Не можете найти подходящий проект?

Обсудим ваш будущий дом?

С чего начинается сотрудничество

Выберите идеальный сценарий начала сотрудничества со Starkwood

8 495 120-28-88
Москва
8 812 270-75-70
Санкт-Петербург
Свяжитесь с нашими
специалистами
Оставьте свои контактные данные, чтобы представители компании Starkwood связались с вами в ближайшее время и проконсультировали по всем вопросам.
Как удобнее с вами связаться
  • Написать в Viber
  • Написать в WhatsApp
  • Написать в Telegram
  • Отправить Sms
8 495 120-28-88
Москва
8 812 270-75-70
Санкт-Петербург
Свяжитесь с нашими
специалистами
Оставьте свои контактные данные, чтобы представители компании Starkwood связались с вами в ближайшее время и проконсультировали по всем вопросам.
Как удобнее с вами связаться
  • Написать в Viber
  • Написать в WhatsApp
  • Написать в Telegram
  • Отправить Sms
8 495 120-28-88
Москва
8 812 270-75-70
Санкт-Петербург
Свяжитесь с нашими
специалистами
Оставьте свои контактные данные, чтобы представители компании Starkwood связались с вами в ближайшее время и проконсультировали по всем вопросам.