Крац – ИНДИВИДУАЛЬНЫЙ ПРОЕКТ ДОМА ИЗ КЛЕЕНОГО БРУСА

О проекте

История создания

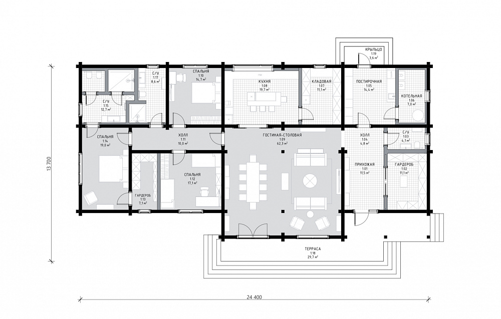
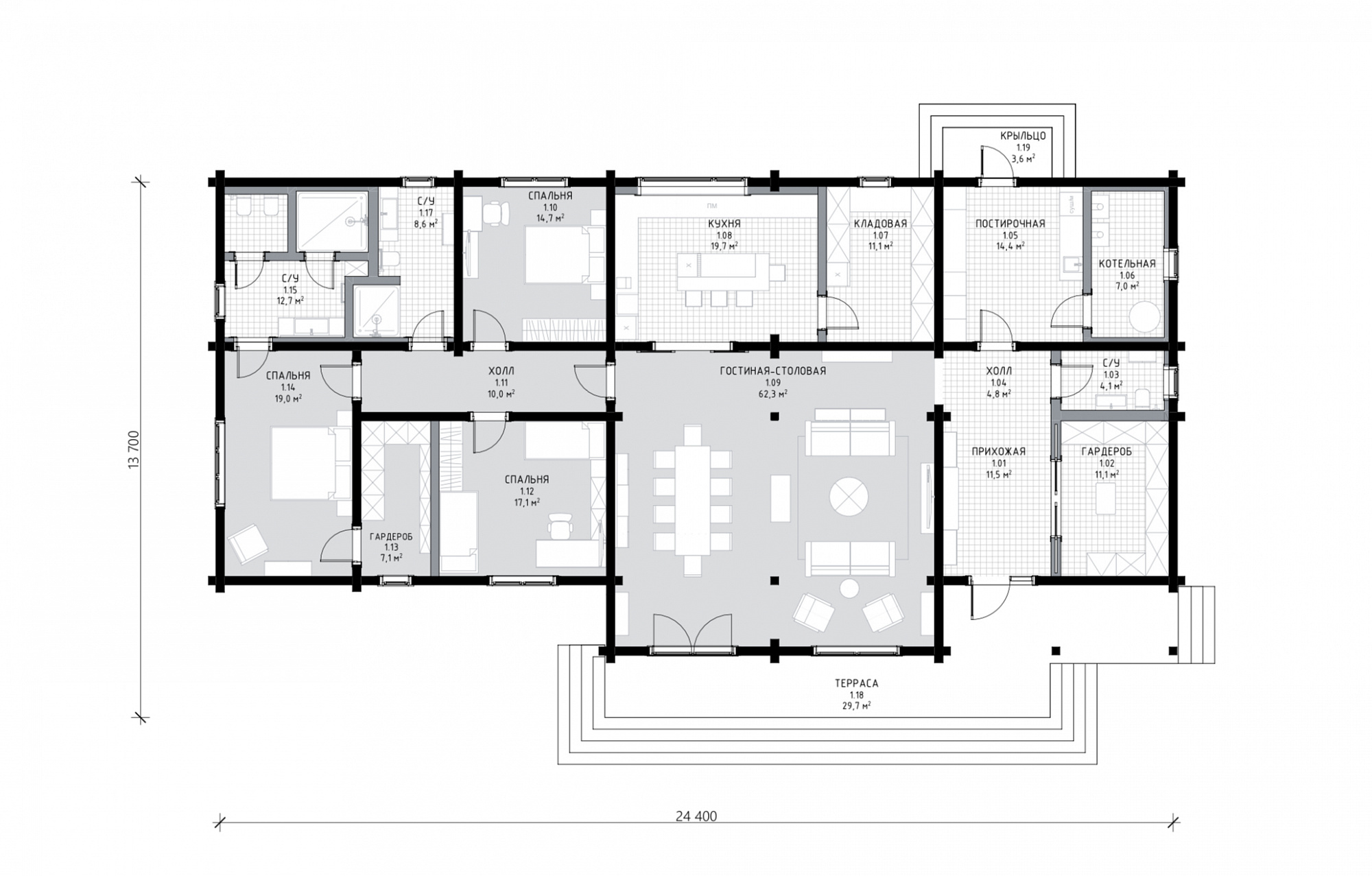
Одноэтажный дом в современном стиле из клееного бруса рассчитан на семью из пяти человек. В оформлении фасада использованы серые декоративные вставки под камень, придающие внешнему облику выразительную контрастность и динамичность. А панорамные окна обеспечивают качественное естественное освещение. Внутреннее пространство разделено на три функциональные части. Центральную занимает объединенная зона гостиной и столовой, имеющая выход на просторную террасу. Кухня отделена от общей зоны легкими раздвижными дверями. В левой части дома расположены мастер-спальня с ванной комнатой и своей гардеробной, а также две детские с общей ванной. Правое крыло отведено под входную зону с гардеробной и гостевой ванной комнатой. В этой же части дома находятся и технические помещения. Проект Крац идеально подойдет тем, кому важны лаконичность, современный подход к оформлению пространства и удобная планировка дома.

общая площадь
268 м²

Планы дома

Индивидуальный проект

1 этаж
Не можете найти подходящий проект?

Обсудим ваш будущий дом?

С чего начинается сотрудничество

Выберите идеальный сценарий начала сотрудничества со Starkwood

8 495 120-28-88
Москва
8 812 270-75-70
Санкт-Петербург
Свяжитесь с нашими
специалистами
Оставьте свои контактные данные, чтобы представители компании Starkwood связались с вами в ближайшее время и проконсультировали по всем вопросам.
Как удобнее с вами связаться
  • Написать в Viber
  • Написать в WhatsApp
  • Написать в Telegram
  • Отправить Sms
8 495 120-28-88
Москва
8 812 270-75-70
Санкт-Петербург
Свяжитесь с нашими
специалистами
Оставьте свои контактные данные, чтобы представители компании Starkwood связались с вами в ближайшее время и проконсультировали по всем вопросам.
Как удобнее с вами связаться
  • Написать в Viber
  • Написать в WhatsApp
  • Написать в Telegram
  • Отправить Sms
8 495 120-28-88
Москва
8 812 270-75-70
Санкт-Петербург
Свяжитесь с нашими
специалистами
Оставьте свои контактные данные, чтобы представители компании Starkwood связались с вами в ближайшее время и проконсультировали по всем вопросам.