Квилл – ИНДИВИДУАЛЬНЫЙ ПРОЕКТ ДОМА ИЗ КЛЕЕНОГО БРУСА

О проекте

История создания

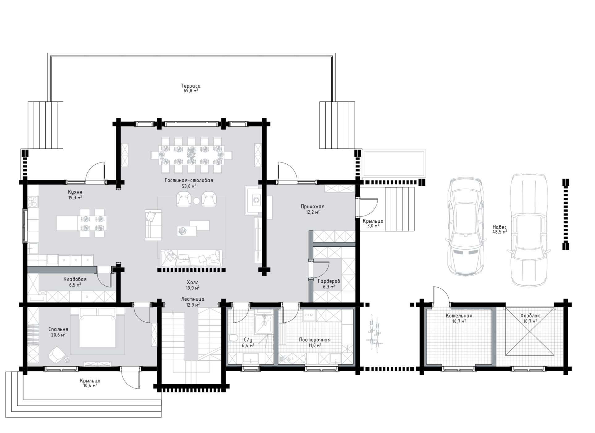
Этот двухэтажный дом для семьи из 4 человек оформлен в стиле современного шале и подходит для комфортного загородного отдыха. Проект “Квилл” выполнен в двух цветовых гаммах по запросу клиента — натуральной бежевой и светло-серой. Темный оттенок декоративных элементов фасадов придает образу особую графичность. Навес для автомобилей, котельная и хозяйственная зона примыкают к дому. Из дома есть выход на большую веранду, на которой приятно отдыхать в любое время суток. Внутреннее пространство организовано с максимальным комфортом. На первом этаже находится прихожая с вместительным гардеробом и прачечная. Для большего удобства кладовая находится рядом с кухней, в оформлении которой используется остров. Просторная гостиная-столовая с камином оборудована вторым светом. Кроме того, на первом этаже находятся спальня и общая ванная комната. На втором этаже расположены две спальни с отдельными ванными и выходами на балкон. Здесь же мы разместили и кабинет хозяина дома. Проект “Квилл” предназначен для тех, кому нравится уют швейцарских шале, и ценителей комфортного отдыха на природе.

общая площадь
442 м²
площадь 1 этажа
321 м²
площадь 2 этажа
121 м²
этажность
2

Планы дома

Индивидуальный проект

1 этаж
2 этаж
Не можете найти подходящий проект?

Обсудим ваш будущий дом?

С чего начинается сотрудничество

Выберите идеальный сценарий начала сотрудничества со Starkwood

8 495 120-28-88
Москва
8 812 270-75-70
Санкт-Петербург
Свяжитесь с нашими
специалистами
Оставьте свои контактные данные, чтобы представители компании Starkwood связались с вами в ближайшее время и проконсультировали по всем вопросам.
Как удобнее с вами связаться
  • Написать в Viber
  • Написать в WhatsApp
  • Написать в Telegram
  • Отправить Sms
8 495 120-28-88
Москва
8 812 270-75-70
Санкт-Петербург
Свяжитесь с нашими
специалистами
Оставьте свои контактные данные, чтобы представители компании Starkwood связались с вами в ближайшее время и проконсультировали по всем вопросам.
Как удобнее с вами связаться
  • Написать в Viber
  • Написать в WhatsApp
  • Написать в Telegram
  • Отправить Sms
8 495 120-28-88
Москва
8 812 270-75-70
Санкт-Петербург
Свяжитесь с нашими
специалистами
Оставьте свои контактные данные, чтобы представители компании Starkwood связались с вами в ближайшее время и проконсультировали по всем вопросам.