Монблан – ИНДИВИДУАЛЬНЫЙ ПРОЕКТ ДОМА ИЗ КЛЕЕНОГО БРУСА

О проекте

История создания

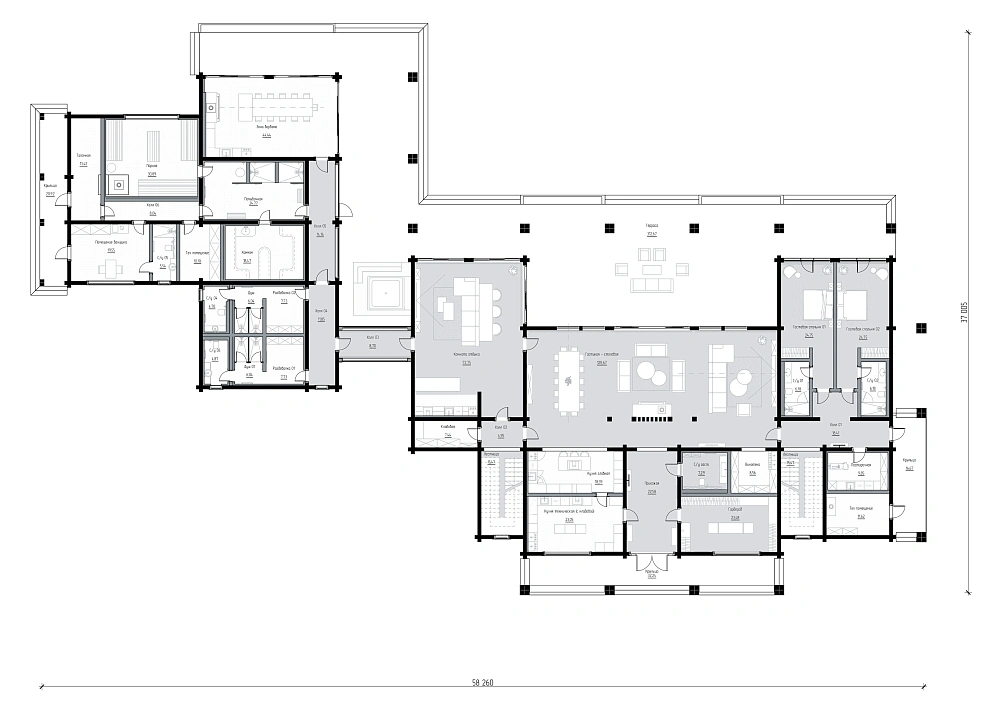
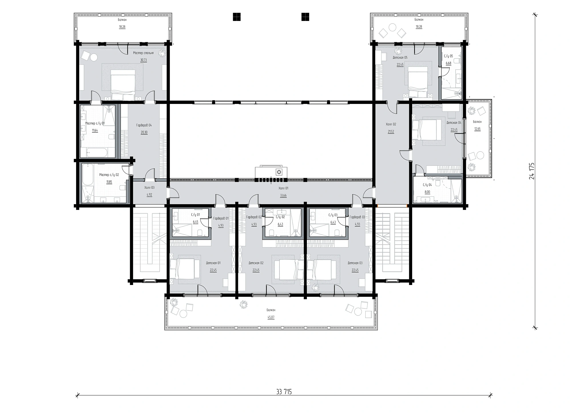
Дом со спа-зоной в стиле шале в сосновом лесу – с таким запросом обратилась в компанию Starkwood семья с пятью детьми. Место, которое заряжает энергией и вдохновением на всю неделю стало семейным оазисом тишины и покоя. Лес, словно добрый защитник, обнимает дом, даря уединение и ощущение безопасности. Здесь рождаются новые традиции и укрепляются семейные узы. Этот дом больше, чем дача выходного дня – это сердце семьи, бьющееся в ритме природы. Специалистам поставили несколько непростых задач. Дом нужно расположить так, чтобы максимально сохранить деревья. Воссоздать панорамный вид вглубь участка и на лес из видовой части дома – гостиной с примыкающей террасой, гостевых и мастер-спальни, спа-зоны. Приватную часть дома зонировать на детскую и взрослую и в каждой спальне предусмотреть балкон. Так родилась архитектурная концепция проекта. Фасад двухэтажного дома площадью 1469 м2 из клеёного бруса обращен к дороге и встречает гостей аккуратной входной группой и мощеной подъездной аллеей. Проект венчает двускатная крыша с широкими свесами, характерными для стиля шале. Панорамные деревянные окна выполнены в изысканном стиле фахверка и придают дому особый шарм и уют. Основными архитектурными акцентами фасада выступают видовые балки, стропила, фермы и декоративный пояс по периметру. Натуральные медовые оттенки дерева в сочетании с темно-серой крышей гармонично вписывают современное строение в пейзаж соснового леса. Ночной облик дома подчеркивает тщательно продуманная система освещения. Скрытая подсветка карниза мягким теплым светом выделяет декоративный пояс. Фасадные светильники создают комфортное ночное освещение. Несколько локальных светильников добавляют глубины и объема ландшафту. Планировочные решения обеспечивают комфорт и приватность каждому члену семьи. Парадное крыльцо ведет в просторную прихожую. Первый этаж условно поделен на три части. Слева обустроили большую зону отдыха – спа и барбекю. В центральной части дома разместили комнату отдыха, две кухни и гостиную-столовую с камином, зоной ТВ и вторым светом. Ближе ко входу расположились винотека, гардеробная и санузел. Справа – две гостевые спальни с санузлами, холл с отдельным выходом, постирочная и техническое помещение с отдельным выходом. Видовая терраса площадью 312,67 м2 соединяет зону отдыха с основной частью дома. Сюда можно попасть из гостиной, комнаты отдыха, гостевых спален, спа- и барбекю зон. Второй этаж занимает приватная зона. Она поделена на родительскую и детскую с отдельными лестницами на первый этаж. В каждой спальне есть выход на балкон. Мастер-спальня площадью 30,73 м2 оснащена двумя санузлами, гардеробной с выходом в отдельный холл. Имеет собственный видовой балкон 18,28 м2. Детские спальни площадью по 22,45 м2 объединяет общий просторный холл. В каждой комнате предусмотрены гардеробная и санузел. Две спальни имеют выход на отдельные балконы. Три – на большой общий балкон площадью 45,07 м2. В гостиной зоне оборудован второй свет, поэтому высота потолков здесь 10 метров. В остальных помещениях первого этажа – 3,1 метра. На втором этаже – переменная высота.

общая площадь
1469 м²
площадь 1 этажа
1079 м²
площадь 2 этажа
390 м²
этажность
2

Планы дома

Индивидуальный проект

1 этаж
2 этаж
Не можете найти подходящий проект?

Обсудим ваш будущий дом?

С чего начинается сотрудничество

Выберите идеальный сценарий начала сотрудничества со Starkwood

8 495 120-28-88
Москва
8 812 270-75-70
Санкт-Петербург
Свяжитесь с нашими
специалистами
Оставьте свои контактные данные, чтобы представители компании Starkwood связались с вами в ближайшее время и проконсультировали по всем вопросам.
Как удобнее с вами связаться
  • Написать в Viber
  • Написать в WhatsApp
  • Написать в Telegram
  • Отправить Sms
8 495 120-28-88
Москва
8 812 270-75-70
Санкт-Петербург
Свяжитесь с нашими
специалистами
Оставьте свои контактные данные, чтобы представители компании Starkwood связались с вами в ближайшее время и проконсультировали по всем вопросам.
Как удобнее с вами связаться
  • Написать в Viber
  • Написать в WhatsApp
  • Написать в Telegram
  • Отправить Sms
8 495 120-28-88
Москва
8 812 270-75-70
Санкт-Петербург
Свяжитесь с нашими
специалистами
Оставьте свои контактные данные, чтобы представители компании Starkwood связались с вами в ближайшее время и проконсультировали по всем вопросам.