Наполеон – ИНДИВИДУАЛЬНЫЙ ПРОЕКТ ДОМА ИЗ КЛЕЕНОГО БРУСА

О проекте

Основные параметры проекта

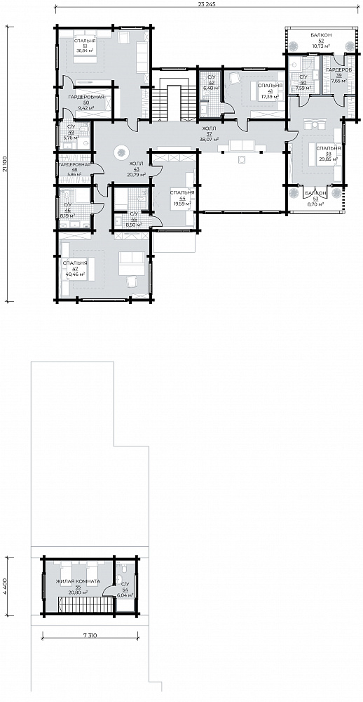
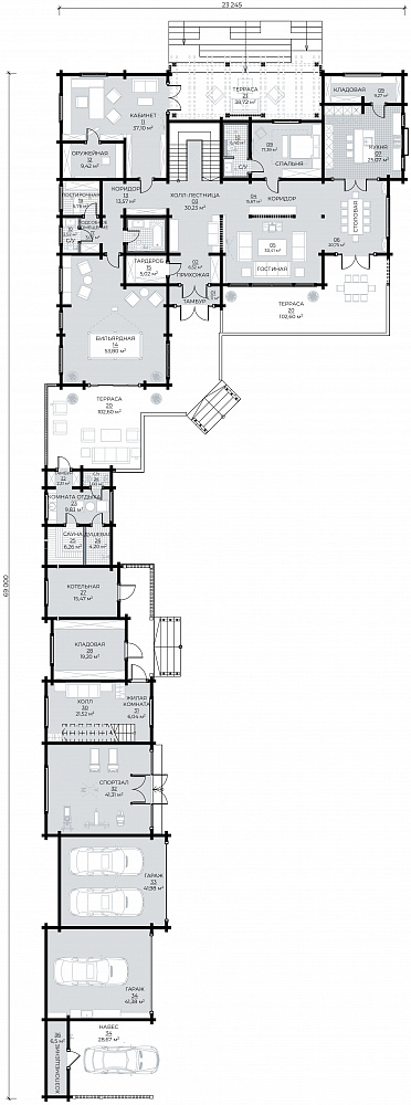
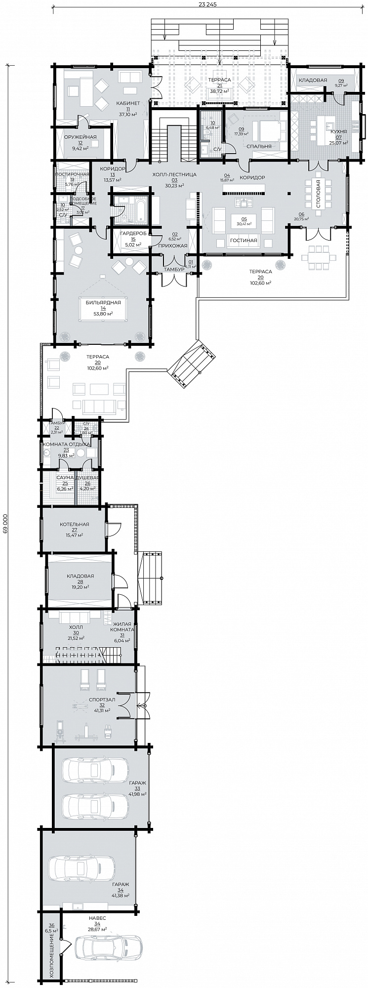
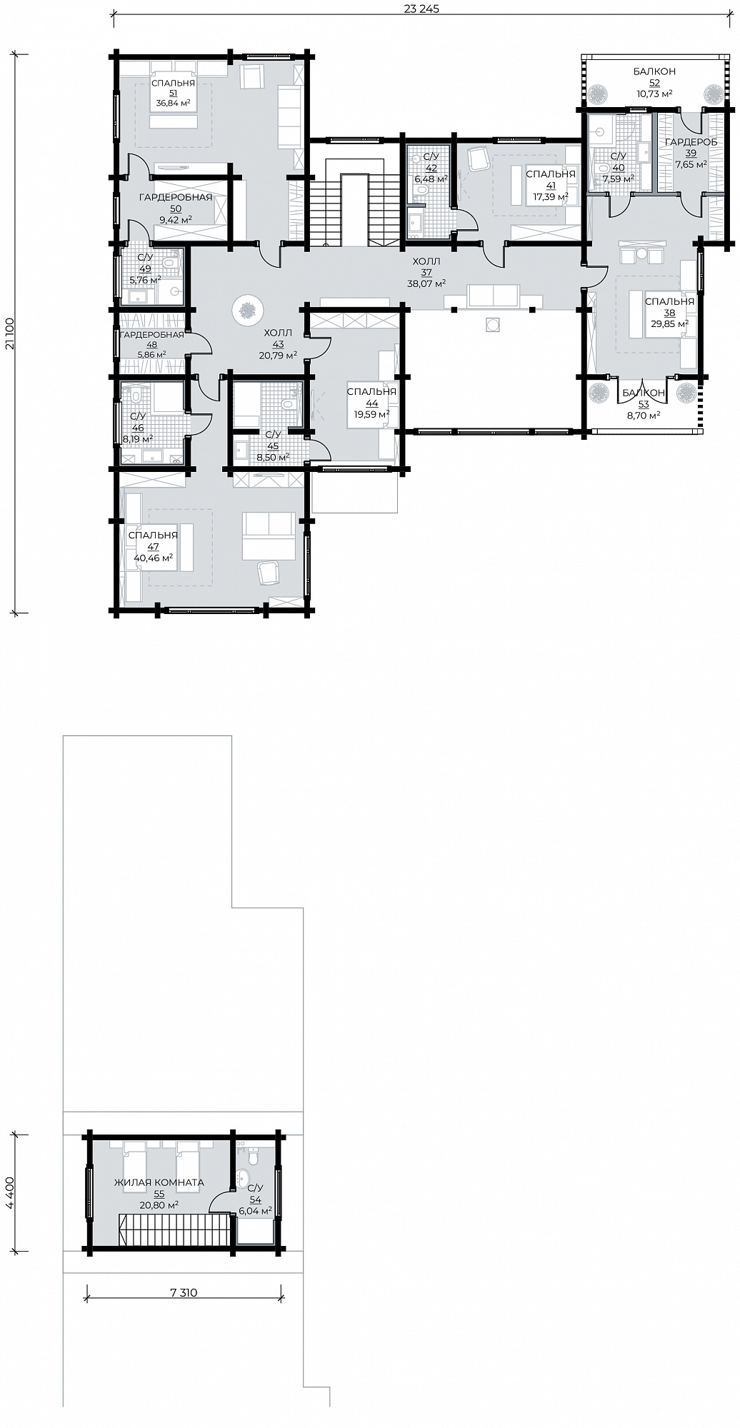
Двухэтажный особняк из клееного бруса с архитектурой в современном стиле. В центре дома — большая гостиная с камином, совмещенная со столовой и холлом. Такое помещение выглядит еще более просторным и светлым благодаря второму свету и панорамным окнам. В доме несколько спален с удобствами под запросы хозяев: где-то есть балкон, где-то — отдельный санузел, где-то — просторная гардеробная, а в одной из спален — все и сразу. Вдали от жилых помещений находится гаражная группа для 5 автомобилей. В пристройке оборудовано помещение под спортзал с удобным проходом прямо до сауны. В этой же пристройке расположены помещения для проживания обслуживающего персонала. На заднем дворе есть зона для летнего отдыха с перголой, которая создает тень даже в самые жаркие дни. Дом подходит людям, которые ценят комфорт и могут себе его позволить.

общая площадь
1010 м²
площадь 1 этажа
705 м²
площадь 2 этажа
305 м²
этажность
2

Планировка дома по проекту Наполеон

Индивидуальный проект

1 этаж
2 этаж
Не можете найти подходящий проект?

Обсудим ваш будущий дом?

С чего начинается сотрудничество

Выберите идеальный сценарий начала сотрудничества со Starkwood

8 495 120-28-88
Москва
8 812 270-75-70
Санкт-Петербург
Свяжитесь с нашими
специалистами
Оставьте свои контактные данные, чтобы представители компании Starkwood связались с вами в ближайшее время и проконсультировали по всем вопросам.
Как удобнее с вами связаться
  • Написать в Viber
  • Написать в WhatsApp
  • Написать в Telegram
  • Отправить Sms
8 495 120-28-88
Москва
8 812 270-75-70
Санкт-Петербург
Свяжитесь с нашими
специалистами
Оставьте свои контактные данные, чтобы представители компании Starkwood связались с вами в ближайшее время и проконсультировали по всем вопросам.
Как удобнее с вами связаться
  • Написать в Viber
  • Написать в WhatsApp
  • Написать в Telegram
  • Отправить Sms
8 495 120-28-88
Москва
8 812 270-75-70
Санкт-Петербург
Свяжитесь с нашими
специалистами
Оставьте свои контактные данные, чтобы представители компании Starkwood связались с вами в ближайшее время и проконсультировали по всем вопросам.