Орион – ИНДИВИДУАЛЬНЫЙ ПРОЕКТ ДОМА ИЗ КЛЕЕНОГО БРУСА

О проекте

История создания

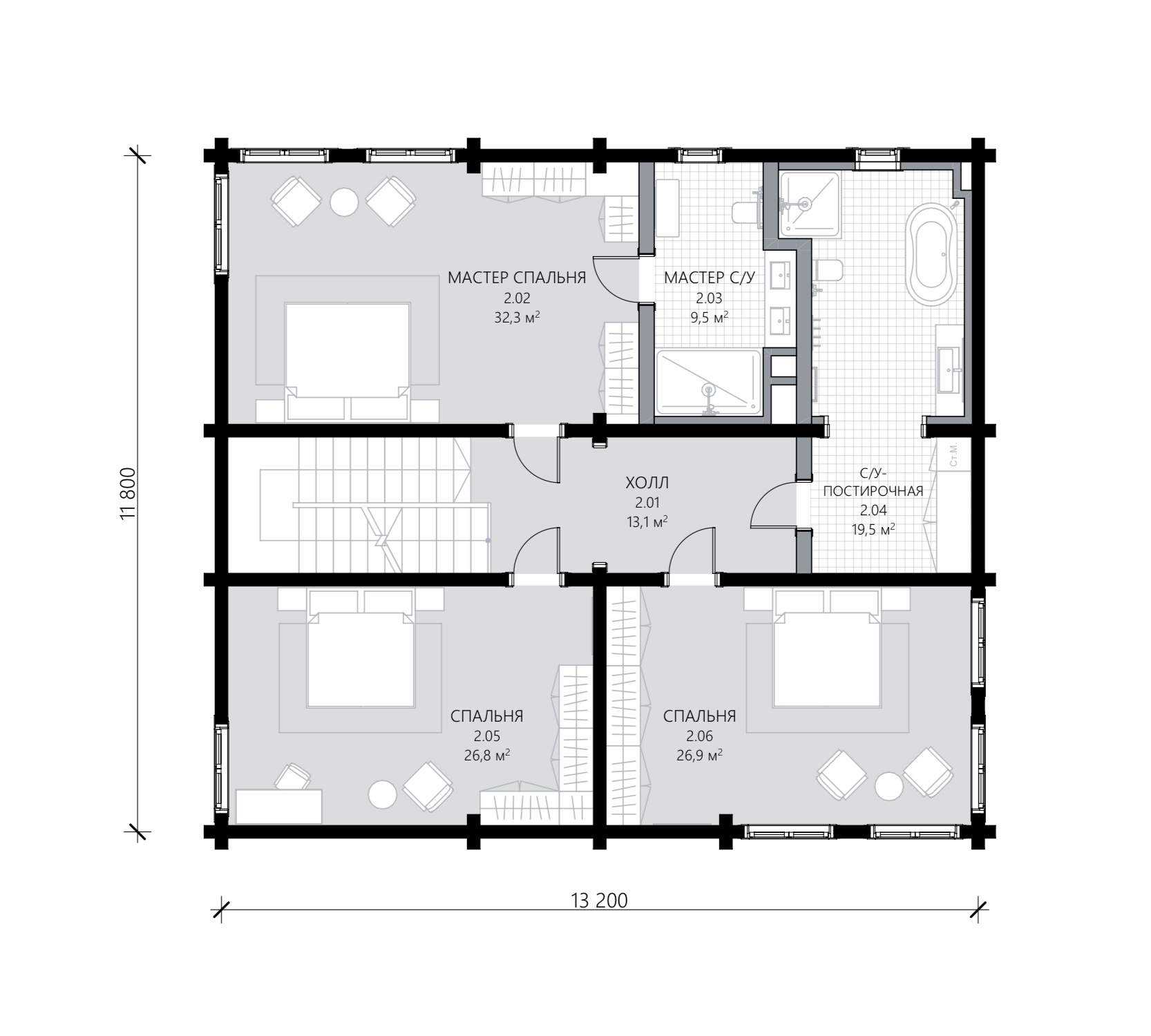
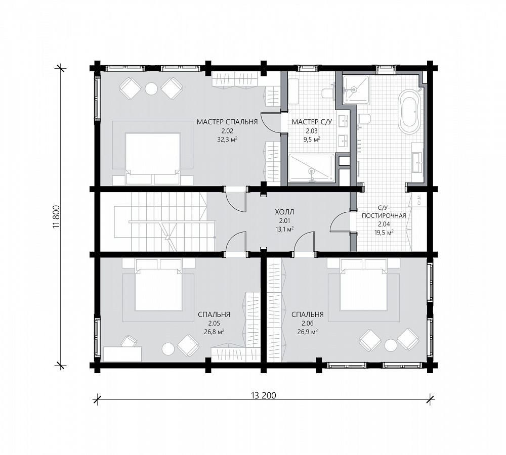
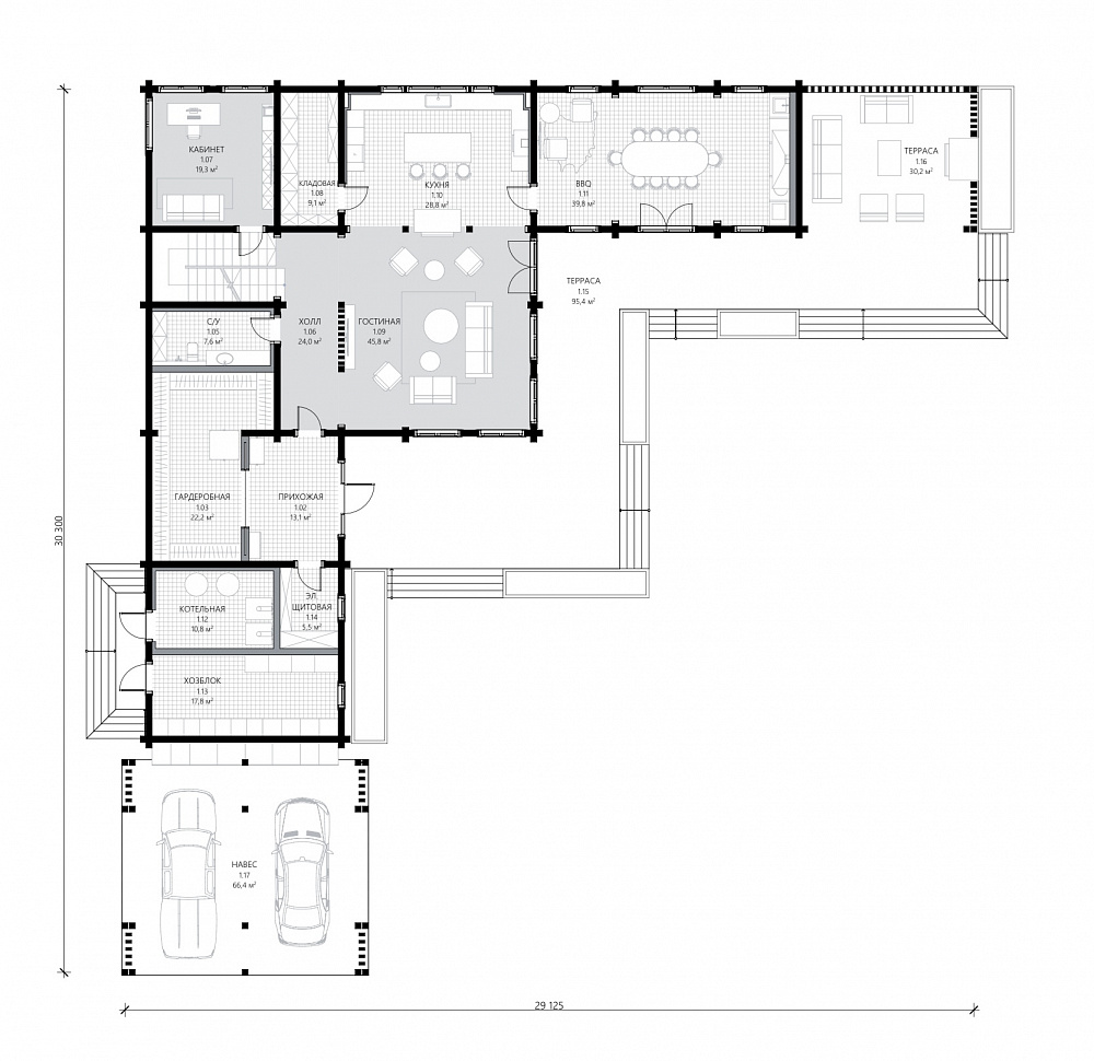
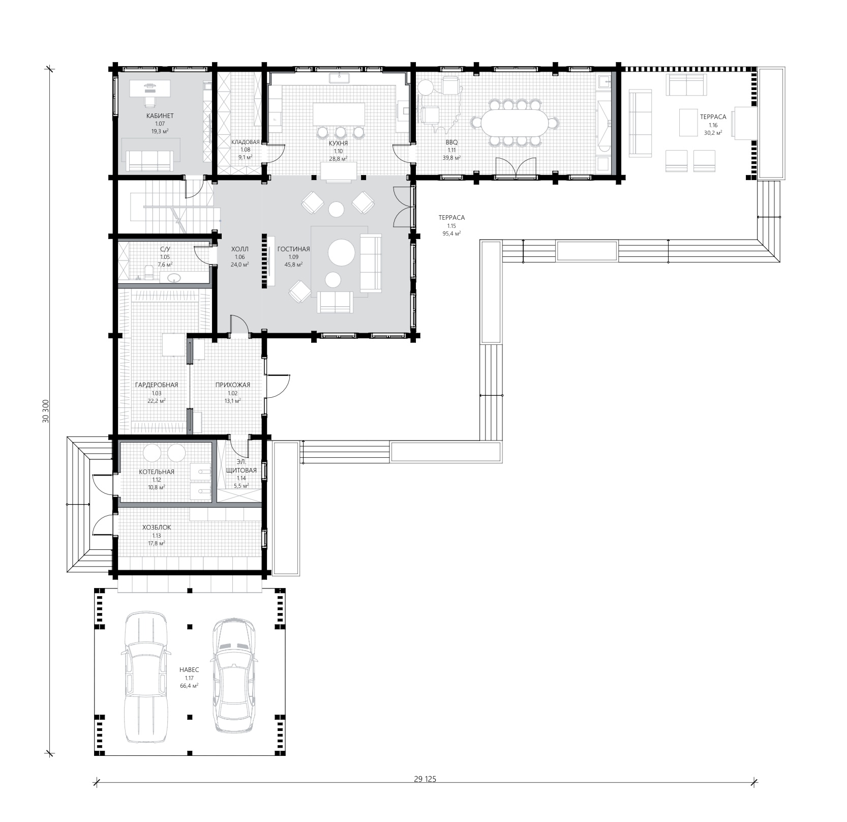
Этот комфортный и функциональный дом рассчитан на семью из 4—5 человек. Двускатная крыша с небольшим уклоном придает проекту «Орион» современность. Сочетание теплого медового оттенка стен с насыщенным серым цветом декоративных элементов делает экстерьер особенно выразительным. Завершает образ горизонтальный фриз, декорированный шпоном дуба и оформленный отдельной подсветкой. Каскадная архитектурная композиция, обусловленная особенностью планировки, придает дому оригинальность и динамичность. Внутреннее пространство разделено на несколько зон: жилую, хозяйственный блок и котельную. На первом этаже расположены прихожая с вместительной гардеробной и просторная гостиная, совмещенная с кухней, откуда есть выход на террасу, объединенную с зоной отдыха и барбекю. На втором этаже находится мастер-спальня с отдельной ванной и две гостевых с общей ванной комнатой. Проект «Орион» подойдет тем, кто ценит удобство, рациональное использование пространства и комфортный отдых.

общая площадь
564 м²
площадь 1 этажа
436 м²
площадь 2 этажа
128 м²
этажность
2
VI Открытый конкурс Приволжского федерального округа
Бронза в номинации "Лучший проект дома из дерева"

Планы дома

Индивидуальный проект

1 этаж
2 этаж
Не можете найти подходящий проект?

Обсудим ваш будущий дом?

С чего начинается сотрудничество

Выберите идеальный сценарий начала сотрудничества со Starkwood

8 495 120-28-88
Москва
8 812 270-75-70
Санкт-Петербург
Свяжитесь с нашими
специалистами
Оставьте свои контактные данные, чтобы представители компании Starkwood связались с вами в ближайшее время и проконсультировали по всем вопросам.
Как удобнее с вами связаться
  • Написать в Viber
  • Написать в WhatsApp
  • Написать в Telegram
  • Отправить Sms
8 495 120-28-88
Москва
8 812 270-75-70
Санкт-Петербург
Свяжитесь с нашими
специалистами
Оставьте свои контактные данные, чтобы представители компании Starkwood связались с вами в ближайшее время и проконсультировали по всем вопросам.
Как удобнее с вами связаться
  • Написать в Viber
  • Написать в WhatsApp
  • Написать в Telegram
  • Отправить Sms
8 495 120-28-88
Москва
8 812 270-75-70
Санкт-Петербург
Свяжитесь с нашими
специалистами
Оставьте свои контактные данные, чтобы представители компании Starkwood связались с вами в ближайшее время и проконсультировали по всем вопросам.