Президент – ИНДИВИДУАЛЬНЫЙ ПРОЕКТ ДОМА ИЗ КЛЕЕНОГО БРУСА

О проекте

Основные параметры проекта

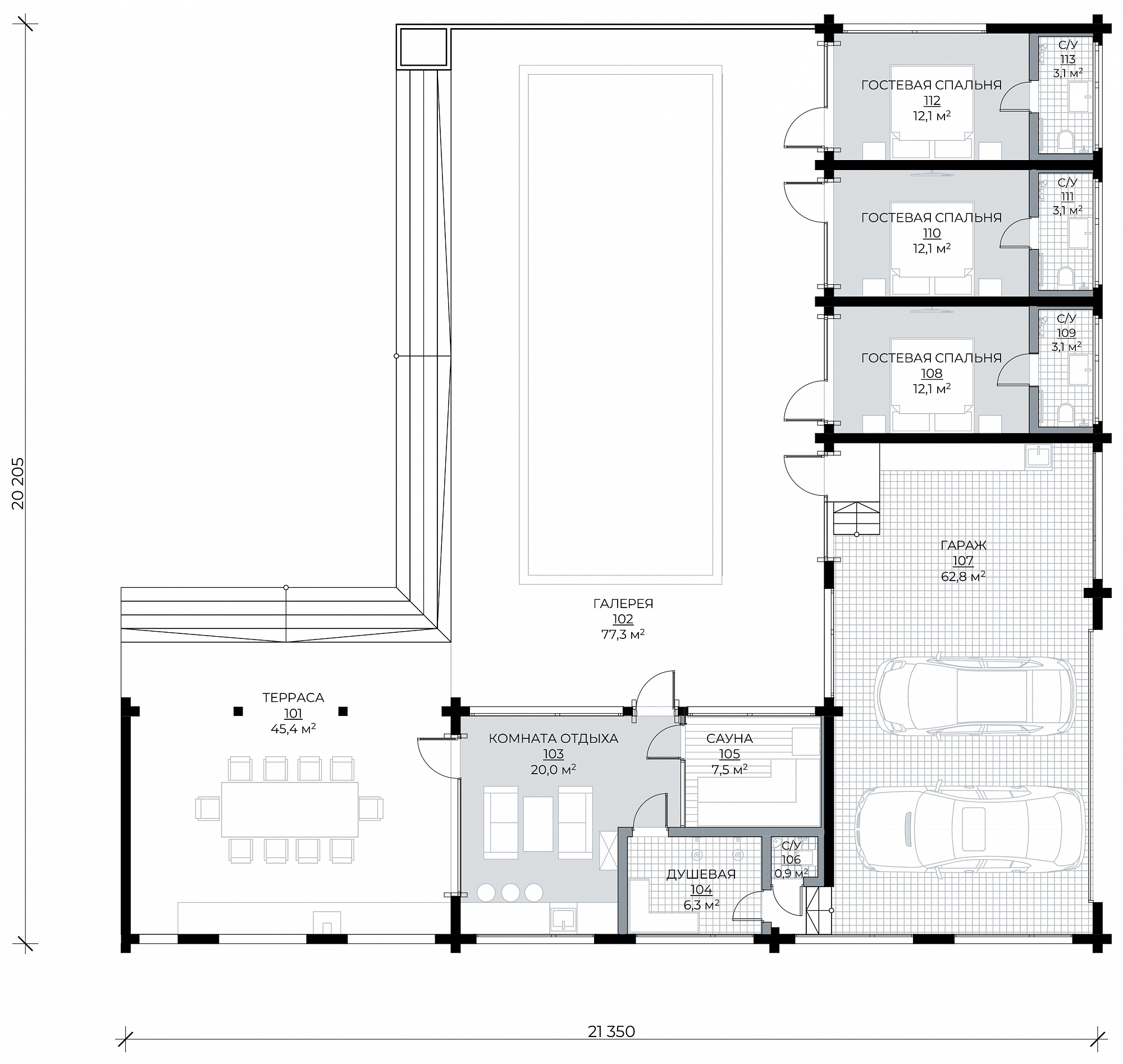
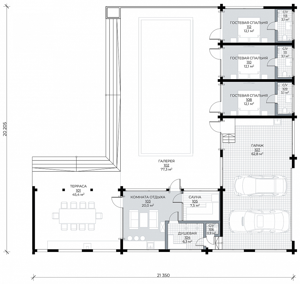
Гостевой дом из клееного бруса в современном стиле с сауной, 3-мя спальнями и открытым бассейном. Архитектура строения позволяет ему быть как отдельно стоящим объектом, так и продолжением дома, объединенным с помощью террас. Современный внешний облик постройке придает панорамное остекление вдоль двух главных фасадов, обращенных к бассейну, а также остекленный участок кровли в зоне открытой веранды. Планировка имеет Г-образную форму, разделяя приватную и общественную функцию на два вытянутых блока, коммуникация между которыми осуществляется по террасе. Все помещения, включая сауну, имеют остекление «в пол» с видом на бассейн и ландшафт заднего двора.

общая площадь
266 м²
площадь 1 этажа
266 м²
этажность
1

Планировка дома

Индивидуальный проект

1 этаж
Не можете найти подходящий проект?

Обсудим ваш будущий дом?

С чего начинается сотрудничество

Выберите идеальный сценарий начала сотрудничества со Starkwood

8 495 120-28-88
Москва
8 812 270-75-70
Санкт-Петербург
Свяжитесь с нашими
специалистами
Оставьте свои контактные данные, чтобы представители компании Starkwood связались с вами в ближайшее время и проконсультировали по всем вопросам.
Как удобнее с вами связаться
  • Написать в Viber
  • Написать в WhatsApp
  • Написать в Telegram
  • Отправить Sms
8 495 120-28-88
Москва
8 812 270-75-70
Санкт-Петербург
Свяжитесь с нашими
специалистами
Оставьте свои контактные данные, чтобы представители компании Starkwood связались с вами в ближайшее время и проконсультировали по всем вопросам.
Как удобнее с вами связаться
  • Написать в Viber
  • Написать в WhatsApp
  • Написать в Telegram
  • Отправить Sms
8 495 120-28-88
Москва
8 812 270-75-70
Санкт-Петербург
Свяжитесь с нашими
специалистами
Оставьте свои контактные данные, чтобы представители компании Starkwood связались с вами в ближайшее время и проконсультировали по всем вопросам.