Рео – ИНДИВИДУАЛЬНЫЙ ПРОЕКТ ДОМА ИЗ КЛЕЕНОГО БРУСА

О проекте

Основные параметры проекта

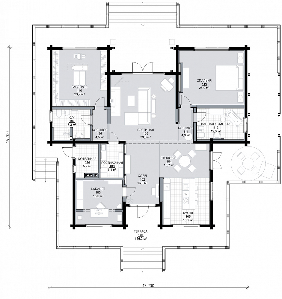
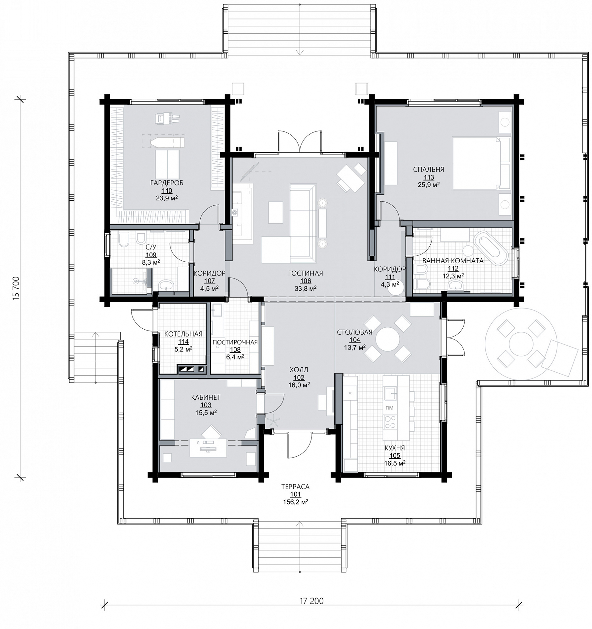
Одноэтажный дом для комфортного проживания небольшой семьи. Современный стиль проекта отлично дополняет продуманная эргономичная планировка. Благодаря большому количеству окон дом будет наполнен светом в течение всего дня. Также сделан упор на открытое пространство, которое создает комфортную атмосферу для общения. Внутренняя планировка имеет удобное зонирование. Просторная гостиная является центральным элементом дома. Представляет собой большое многофункциональное помещение, плавно перетекающее в холл и кухню-столовую. В доме также расположены спальня и гардероб с собственными ванными комнатами. Уединенный кабинет и необходимые технические помещения. Дом имеет три выхода на террасу, которая становится продолжением внутреннего пространства и в то же время является местом единения с природой. Проект «Рео» создан для тех, кто ценит качество жизни и удобство.

общая площадь
336,2 м²
этажность
1

Планы дома

Индивидуальный проект

1 этаж
Не можете найти подходящий проект?

Обсудим ваш будущий дом?

С чего начинается сотрудничество

Выберите идеальный сценарий начала сотрудничества со Starkwood

8 495 120-28-88
Москва
8 812 270-75-70
Санкт-Петербург
Свяжитесь с нашими
специалистами
Оставьте свои контактные данные, чтобы представители компании Starkwood связались с вами в ближайшее время и проконсультировали по всем вопросам.
Как удобнее с вами связаться
  • Написать в Viber
  • Написать в WhatsApp
  • Написать в Telegram
  • Отправить Sms
8 495 120-28-88
Москва
8 812 270-75-70
Санкт-Петербург
Свяжитесь с нашими
специалистами
Оставьте свои контактные данные, чтобы представители компании Starkwood связались с вами в ближайшее время и проконсультировали по всем вопросам.
Как удобнее с вами связаться
  • Написать в Viber
  • Написать в WhatsApp
  • Написать в Telegram
  • Отправить Sms
8 495 120-28-88
Москва
8 812 270-75-70
Санкт-Петербург
Свяжитесь с нашими
специалистами
Оставьте свои контактные данные, чтобы представители компании Starkwood связались с вами в ближайшее время и проконсультировали по всем вопросам.