Рейн – ИНДИВИДУАЛЬНЫЙ ПРОЕКТ ДОМА ИЗ КЛЕЕНОГО БРУСА

О проекте

История создания

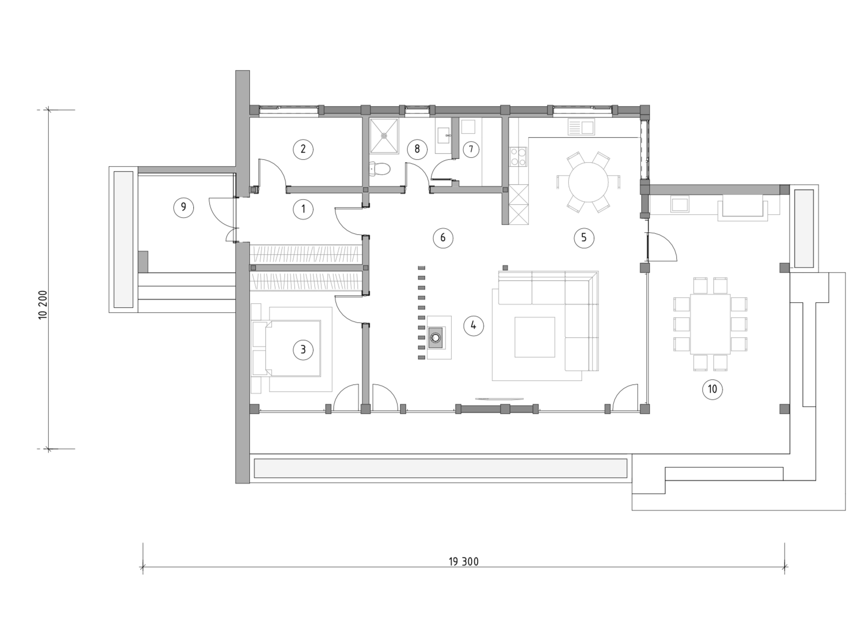
Одноэтажный дом предназначен для семьи из 2 человек. Проект выполнен в современном стиле по технологии фахверк, особенности которого подчеркивают односкатная кровля и оригинальные видовые балки и стропила. Панорамное остекление завершает образ и делает внутреннее пространство более открытым и наполненным светом. Просторная терраса становится продолжением дома. Зона отдыха и барбекю расположены под кровлей, чтобы проводить время на свежем воздухе было комфортно в любую погоду и время суток. Внутреннее пространство спланировано в соответствии с современными тенденциями. К прихожей примыкают просторная гардеробная и котельная. Входная и приватная зоны разделены декоративной стенкой. Гостиная объединена с кухней в общее пространство и имеет выход на террасу. Кроме того, в доме есть ванная комната с сауной и просторная спальня со своей гардеробной. Проект подходит и для комфортного проживания в течение всего года, и для сезонного отдыха.

общая площадь
154 м²
площадь 1 этажа
98 м²
этажность
1

Планы дома

Индивидуальный проект

1 этаж
Не можете найти подходящий проект?

Обсудим ваш будущий дом?

С чего начинается сотрудничество

Выберите идеальный сценарий начала сотрудничества со Starkwood

8 495 120-28-88
Москва
8 812 270-75-70
Санкт-Петербург
Свяжитесь с нашими
специалистами
Оставьте свои контактные данные, чтобы представители компании Starkwood связались с вами в ближайшее время и проконсультировали по всем вопросам.
Как удобнее с вами связаться
  • Написать в Viber
  • Написать в WhatsApp
  • Написать в Telegram
  • Отправить Sms
8 495 120-28-88
Москва
8 812 270-75-70
Санкт-Петербург
Свяжитесь с нашими
специалистами
Оставьте свои контактные данные, чтобы представители компании Starkwood связались с вами в ближайшее время и проконсультировали по всем вопросам.
Как удобнее с вами связаться
  • Написать в Viber
  • Написать в WhatsApp
  • Написать в Telegram
  • Отправить Sms
8 495 120-28-88
Москва
8 812 270-75-70
Санкт-Петербург
Свяжитесь с нашими
специалистами
Оставьте свои контактные данные, чтобы представители компании Starkwood связались с вами в ближайшее время и проконсультировали по всем вопросам.