Сантал – ИНДИВИДУАЛЬНЫЙ ПРОЕКТ ДОМА ИЗ КЛЕЕНОГО БРУСА

О проекте

Основные параметры проекта

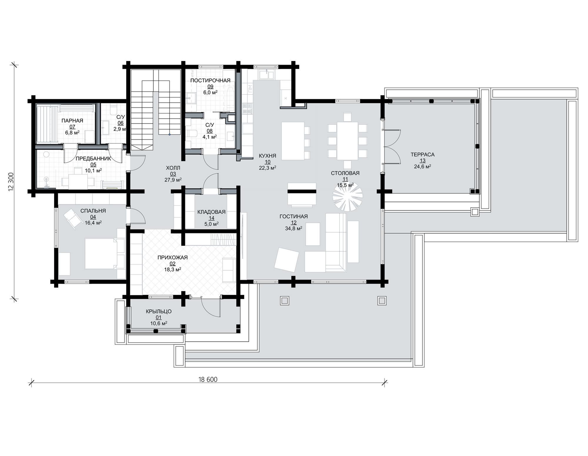
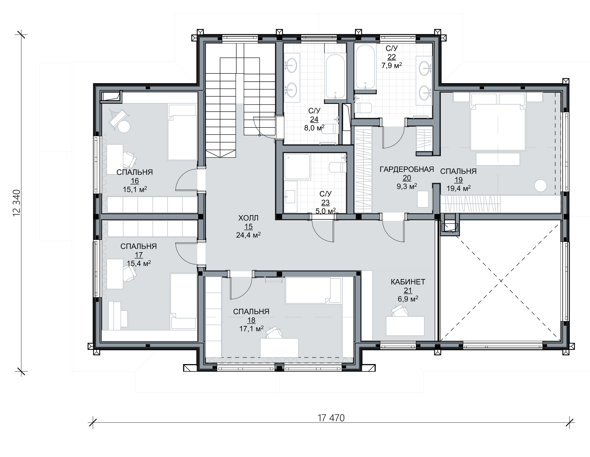
Двухэтажный дом в классическом стиле для большой семьи. Брутальный по цвету, он в то же время выглядит легко и рельефно благодаря панорамному остеклению, обилию деталей и акцентной подсветке фасадов. В центре дома располагается общая для всей семьи просторная гостиная со столовой. Эргономичная планировка объединенного пространства предполагает возможность удобного выхода во двор через террасу к открытой площадке для отдыха перед домом. Гостиная имеет второй свет с балконом, на котором располагается кабинет. Такое решение добавляет больше света и воздуха во внутреннее пространство. В доме пять спален, одна из которых располагается на первом этаже. Мастер-спальня максимально изолирована со всех сторон от остальных помещений — тихое, уединенное место для сна и отдыха. Проект «Сантал» для ценителей стиля и комфорта.

общая площадь
334м²
площадь 1 этажа
205 м²
площадь 2 этажа
129 м²
этажность
2

Планы дома

Индивидуальный проект

1 этаж
2 этаж
Не можете найти подходящий проект?

Обсудим ваш будущий дом?

С чего начинается сотрудничество

Выберите идеальный сценарий начала сотрудничества со Starkwood

8 495 120-28-88
Москва
8 812 270-75-70
Санкт-Петербург
Свяжитесь с нашими
специалистами
Оставьте свои контактные данные, чтобы представители компании Starkwood связались с вами в ближайшее время и проконсультировали по всем вопросам.
Как удобнее с вами связаться
  • Написать в Viber
  • Написать в WhatsApp
  • Написать в Telegram
  • Отправить Sms
8 495 120-28-88
Москва
8 812 270-75-70
Санкт-Петербург
Свяжитесь с нашими
специалистами
Оставьте свои контактные данные, чтобы представители компании Starkwood связались с вами в ближайшее время и проконсультировали по всем вопросам.
Как удобнее с вами связаться
  • Написать в Viber
  • Написать в WhatsApp
  • Написать в Telegram
  • Отправить Sms
8 495 120-28-88
Москва
8 812 270-75-70
Санкт-Петербург
Свяжитесь с нашими
специалистами
Оставьте свои контактные данные, чтобы представители компании Starkwood связались с вами в ближайшее время и проконсультировали по всем вопросам.