Старица – ИНДИВИДУАЛЬНЫЙ ПРОЕКТ ДОМА ИЗ КЛЕЕНОГО БРУСА

О проекте

Основные параметры проекта

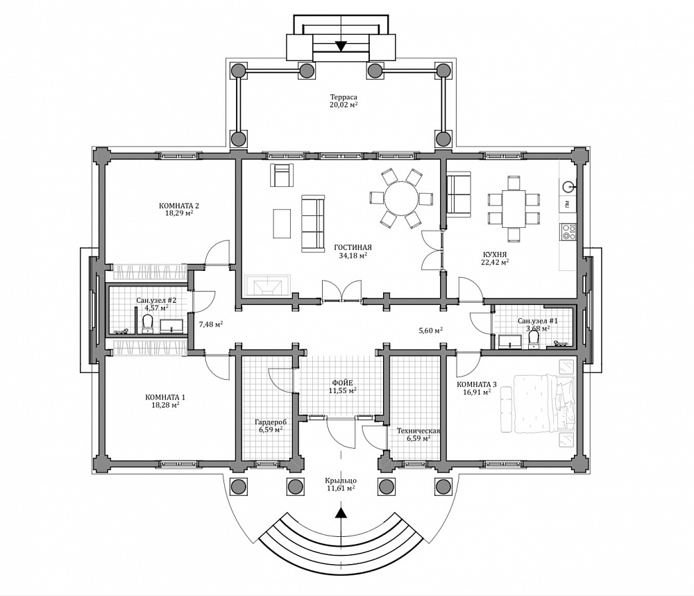
Возрождая архитектурное и культурное наследие дворянских имений, мы не могли оставить без внимания такое явление, как малая городская усадьба. И создавая проект “Старица”, наши архитекторы ориентировались на внешний вид и планировку усадьбы Чевакиных под Торжком и охотничьего павильона усадьбы Глебово. Резиденция подходит для семьи из четырех человек. Основные фасады дома декорированы четырехколонными портиками, которые подчеркивают одноэтажный объем усадьбы. Аттик со шпилем завершает внешний облик дома. В основе внутренней планировки использованы формы, приближенные к квадрату. Из просторного фойе легко попасть в котельную, вместительную гардеробную и центральный холл. Из холла можно пройти в уютную гостиную с высокими потолками – более 4 м. Такой прием придает интерьеру воздух и простор. В правом крыле усадьбы мы расположили кухню, ванную и жилую комнату. В левом крыле – две спальни и еще одну ванную. Высокие потолки помещений – 3,15 м – делают усадьбу особенно просторной и соответствующей стилю дворянских городских домов 19 века. Усадьба “Старица” подходит как для постоянного, так и для сезонного проживания. В этом доме будет комфортно в любое время года.

общая площадь
187 м²
площадь 1 этажа
187 м²
этажность
1

Индивидуальный проект

1 этаж
Не можете найти подходящий проект?

Обсудим ваш будущий дом?

С чего начинается сотрудничество

Выберите идеальный сценарий начала сотрудничества со Starkwood

8 495 120-28-88
Москва
8 812 270-75-70
Санкт-Петербург
Свяжитесь с нашими
специалистами
Оставьте свои контактные данные, чтобы представители компании Starkwood связались с вами в ближайшее время и проконсультировали по всем вопросам.
Как удобнее с вами связаться
  • Написать в Viber
  • Написать в WhatsApp
  • Написать в Telegram
  • Отправить Sms
8 495 120-28-88
Москва
8 812 270-75-70
Санкт-Петербург
Свяжитесь с нашими
специалистами
Оставьте свои контактные данные, чтобы представители компании Starkwood связались с вами в ближайшее время и проконсультировали по всем вопросам.
Как удобнее с вами связаться
  • Написать в Viber
  • Написать в WhatsApp
  • Написать в Telegram
  • Отправить Sms
8 495 120-28-88
Москва
8 812 270-75-70
Санкт-Петербург
Свяжитесь с нашими
специалистами
Оставьте свои контактные данные, чтобы представители компании Starkwood связались с вами в ближайшее время и проконсультировали по всем вопросам.