Тиль – ИНДИВИДУАЛЬНЫЙ ПРОЕКТ ДОМА ИЗ КЛЕЕНОГО БРУСА

О проекте

История создания

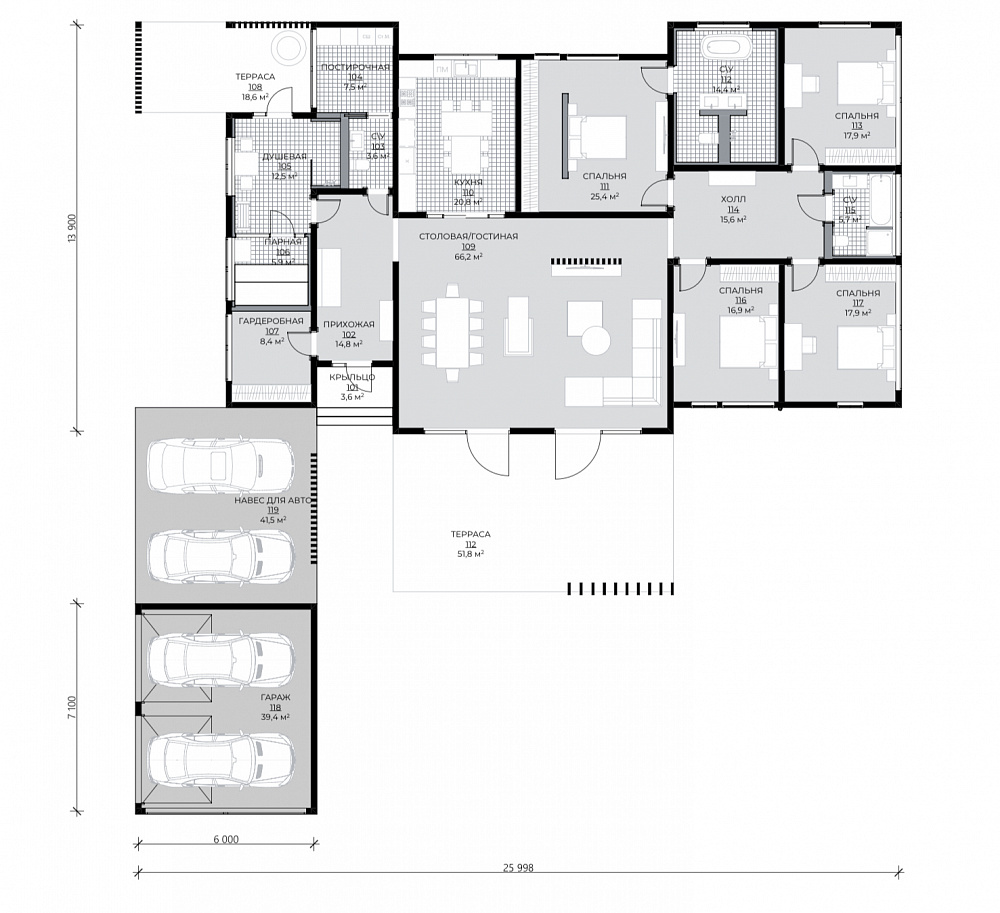
Современный одноэтажный дом, объединяющий в себе смелые архитектурные решения и широкий функционал внутреннего пространства. Дом спроектирован с учетом современной технологии строительства из клеёного бруса и применением City - угла. Дерево и каменная отделка фасада сланцем подчеркивают современность этого проекта. Легкий шарм брутальной архитектуре придает вертикальная пергола, покрытая натуральным шпоном. Панорамное остекление служит богатым источником дневного света в гостиной - столовой, которые эргономично объединены в общее пространство с кухней и холлом. В доме так же предусмотрены 2 детских комнаты с общей ванной комнатой, гостевая спальня и мастер-спальня с собственной ванной - душевой. Левое крыло дома отдано для зоны SPA с отдельным выходом на террасу с купелью. В общую концепцию дома интегрирован авто - паркинг с открытым навесом и закрытым гаражом на 4 автомобиля. Проект «Тиль» для тех, кто ценит стиль, удобство и элегантность.

общая площадь
399 м²

Планы дома

Индивидуальный проект

1 этаж
Не можете найти подходящий проект?

Обсудим ваш будущий дом?

С чего начинается сотрудничество

Выберите идеальный сценарий начала сотрудничества со Starkwood

8 495 120-28-88
Москва
8 812 270-75-70
Санкт-Петербург
Свяжитесь с нашими
специалистами
Оставьте свои контактные данные, чтобы представители компании Starkwood связались с вами в ближайшее время и проконсультировали по всем вопросам.
Как удобнее с вами связаться
  • Написать в Viber
  • Написать в WhatsApp
  • Написать в Telegram
  • Отправить Sms
8 495 120-28-88
Москва
8 812 270-75-70
Санкт-Петербург
Свяжитесь с нашими
специалистами
Оставьте свои контактные данные, чтобы представители компании Starkwood связались с вами в ближайшее время и проконсультировали по всем вопросам.
Как удобнее с вами связаться
  • Написать в Viber
  • Написать в WhatsApp
  • Написать в Telegram
  • Отправить Sms
8 495 120-28-88
Москва
8 812 270-75-70
Санкт-Петербург
Свяжитесь с нашими
специалистами
Оставьте свои контактные данные, чтобы представители компании Starkwood связались с вами в ближайшее время и проконсультировали по всем вопросам.