Троодос – ИНДИВИДУАЛЬНЫЙ ПРОЕКТ ДОМА ИЗ КЛЕЕНОГО БРУСА

О проекте

История создания

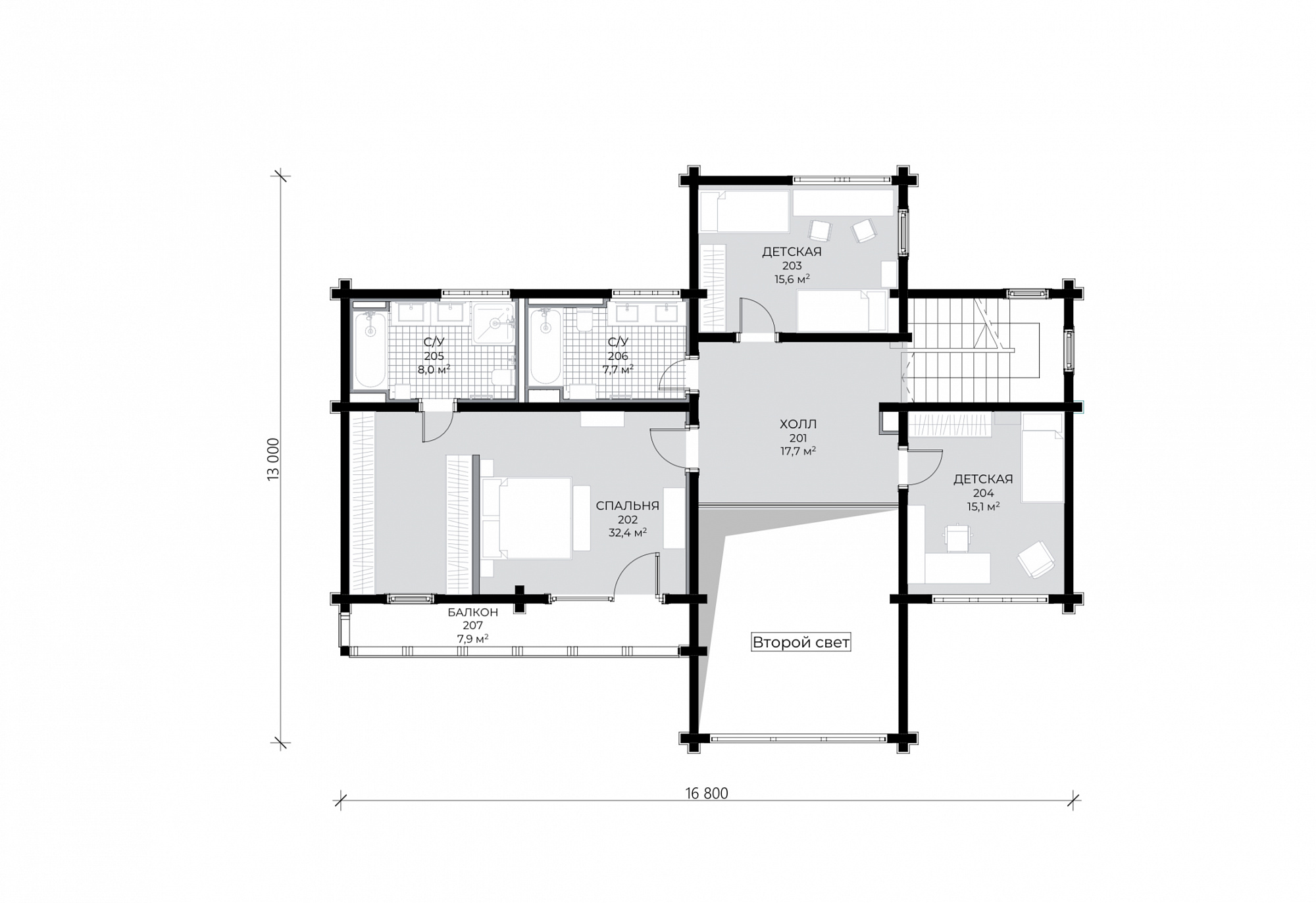
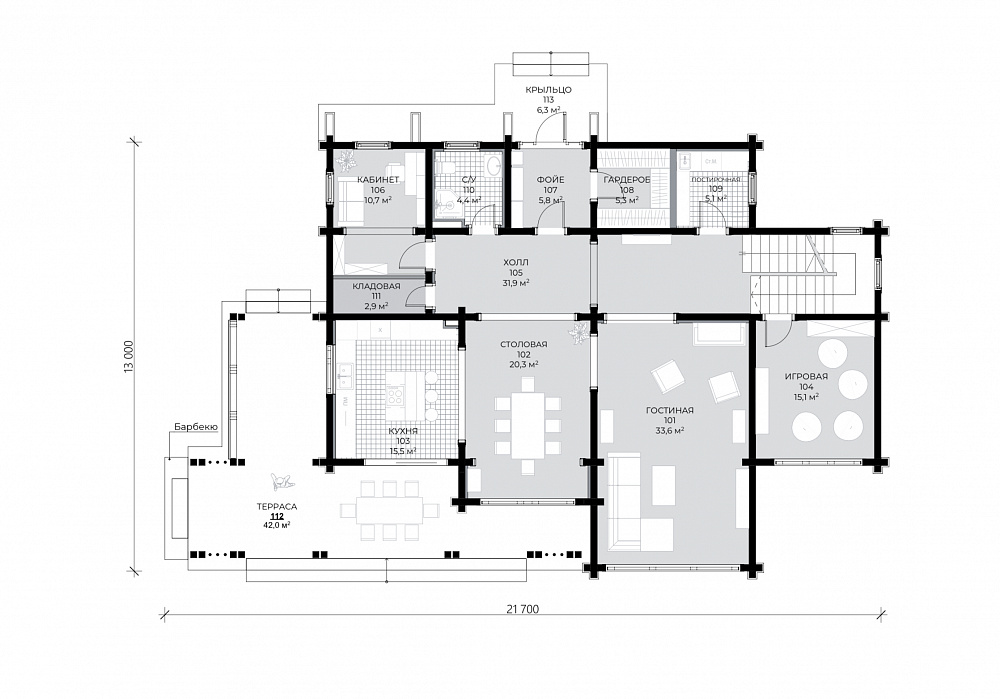
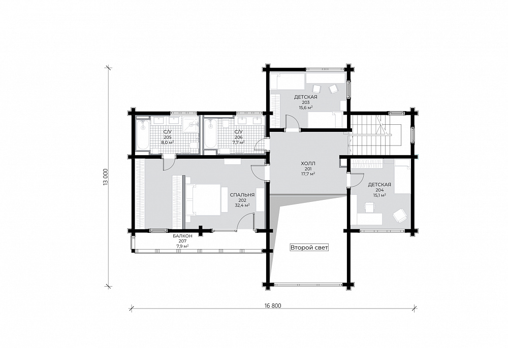
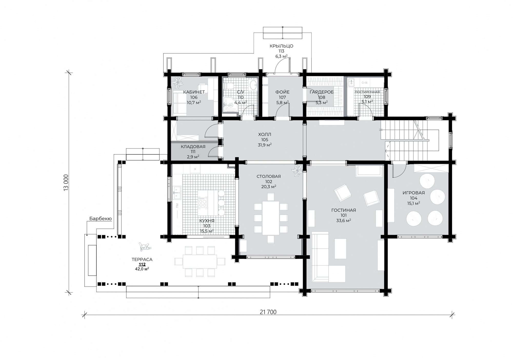
Двухэтажный дом рассчитан на семью из 4—5 человек. Колористическое решение фасада выполнено в светло-бежевом цвете, что в сочетании с отделкой серым каменным шпоном и панорамным остеклением придают архитектуре дома современный вид. Балки с тонкой резьбой и подсветка контуров крыши добавляют образу дома легкость. Возле главного входа расположена удобная парковочная площадка с навесом. Терраса на первом этаже объединена с зоной барбекю, на нее можно выйти из кухни и столовой. Второй свет в гостиной создает ощущение большого пространства, делает помещение эстетичнее. На первом этаже для детей обустроена игровая, на втором - две индивидуальные детские комнаты. Мастер-спальня оборудована гардеробной и отдельной ванной. С широкого балкона открывается прекрасный вид. Проект «Троодос» подходит для тех, кому дороги семейные ценности, комфорт и изящность.

общая площадь
310 м²
площадь 1 этажа
197
площадь 2 этажа
113
этажность
2

Планы дома

Индивидуальный проект

1 этаж
2 этаж
Не можете найти подходящий проект?

Обсудим ваш будущий дом?

С чего начинается сотрудничество

Выберите идеальный сценарий начала сотрудничества со Starkwood

8 495 120-28-88
Москва
8 812 270-75-70
Санкт-Петербург
Свяжитесь с нашими
специалистами
Оставьте свои контактные данные, чтобы представители компании Starkwood связались с вами в ближайшее время и проконсультировали по всем вопросам.
Как удобнее с вами связаться
  • Написать в Viber
  • Написать в WhatsApp
  • Написать в Telegram
  • Отправить Sms
8 495 120-28-88
Москва
8 812 270-75-70
Санкт-Петербург
Свяжитесь с нашими
специалистами
Оставьте свои контактные данные, чтобы представители компании Starkwood связались с вами в ближайшее время и проконсультировали по всем вопросам.
Как удобнее с вами связаться
  • Написать в Viber
  • Написать в WhatsApp
  • Написать в Telegram
  • Отправить Sms
8 495 120-28-88
Москва
8 812 270-75-70
Санкт-Петербург
Свяжитесь с нашими
специалистами
Оставьте свои контактные данные, чтобы представители компании Starkwood связались с вами в ближайшее время и проконсультировали по всем вопросам.