Вега – ИНДИВИДУАЛЬНЫЙ ПРОЕКТ ДОМА ИЗ КЛЕЕНОГО БРУСА

О проекте

История создания

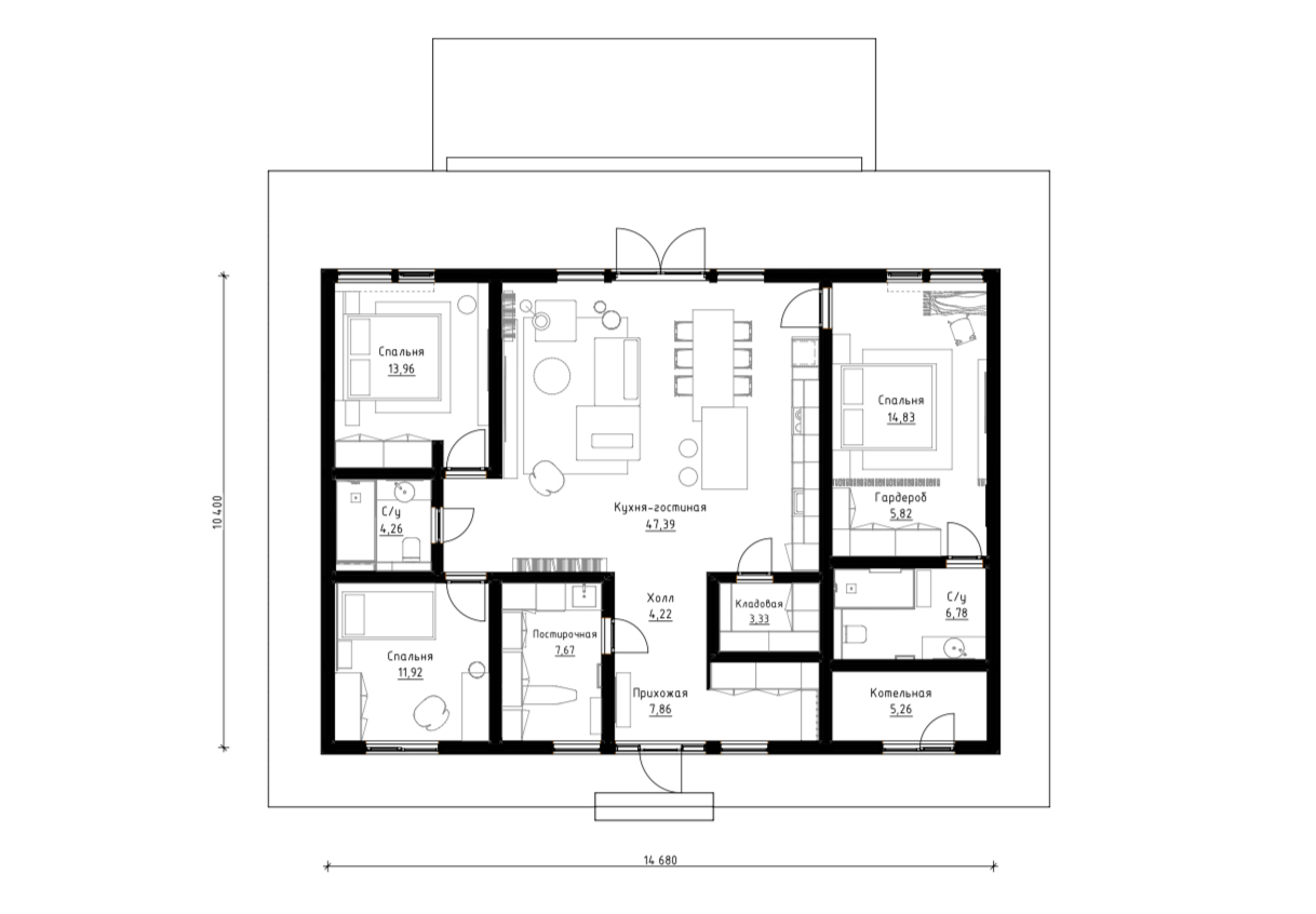
Одноэтажный дом выполнен в современном стиле по технологии фахверк и рассчитан на семью из 3—4 человек. Стены отделаны планкеном разной ширины, в отделке фронтонов используется брусок. Фасады выдержаны в глубоких темно-серых оттенках. Текстура дерева подчеркнута с помощью специальной обработки и создает оригинальный контраст с декоративным поясом, идущим по периметру фасадов. Акцентная красная вставка дополняет образ. Декоративная подсветка фасадов, фронтонов и террасы подчеркивает современную стилистику архитектуры. Внутренняя планировка продумана с максимальной практичностью. К прихожей примыкают гардеробная и удобная прачечная. Техническая зона оборудована отдельным входом. Гостиная совмещена со столовой и кухней. В зоне гостиной — потолки с увеличенной высотой, которые делают пространство еще более просторным. В кухне обустроена удобная кладовая. Из зоны гостиной-столовой можно выйти на большую террасу. В приватной зоне расположены мастер-спальня со своей ванной комнатой и отдельной гардеробной и две комфортных детских с общей ванной.

общая площадь
134 м²
площадь 1 этажа
134 м²
этажность
1

Планы дома

Индивидуальный проект

1 этаж
Не можете найти подходящий проект?

Обсудим ваш будущий дом?

С чего начинается сотрудничество

Выберите идеальный сценарий начала сотрудничества со Starkwood

8 495 120-28-88
Москва
8 812 270-75-70
Санкт-Петербург
Свяжитесь с нашими
специалистами
Оставьте свои контактные данные, чтобы представители компании Starkwood связались с вами в ближайшее время и проконсультировали по всем вопросам.
Как удобнее с вами связаться
  • Написать в Viber
  • Написать в WhatsApp
  • Написать в Telegram
  • Отправить Sms
8 495 120-28-88
Москва
8 812 270-75-70
Санкт-Петербург
Свяжитесь с нашими
специалистами
Оставьте свои контактные данные, чтобы представители компании Starkwood связались с вами в ближайшее время и проконсультировали по всем вопросам.
Как удобнее с вами связаться
  • Написать в Viber
  • Написать в WhatsApp
  • Написать в Telegram
  • Отправить Sms
8 495 120-28-88
Москва
8 812 270-75-70
Санкт-Петербург
Свяжитесь с нашими
специалистами
Оставьте свои контактные данные, чтобы представители компании Starkwood связались с вами в ближайшее время и проконсультировали по всем вопросам.